北辰正荣府南北通透三居 毛坯127平仅153万
-
153万
总价
-
3室2厅2卫
户型
-
127.63㎡
建筑面积
买房加房产交流群,省钱不踩雷
3000+人正在热聊
-
单价
11988元/平米
- 挂牌价格解析
-
楼层
中层/11层
- 咨询楼层
-
套内
暂无数据
- 咨询套内使用面积
-
楼型
板楼
-
朝向
南北
-
装修
毛坯
-
年代
2019
-
发布
2025-12-24
-
地铁
距5号线北辰道站约530米
-
咨询总首付
首付约39.4万
首付税费及佣金情况 -
深度测评
小区正荣府(北辰-宜兴埠)
-
更多
楼户比、楼层高度、交易历史、抵押信息
房源描述(1)
-
核心卖点问经纪人
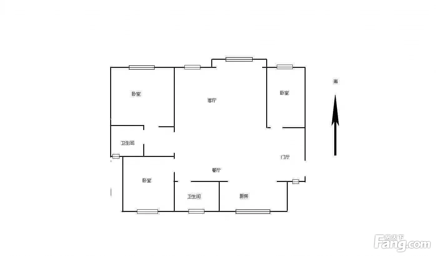
正荣府位于北辰区宜兴埠核心地段,淮东路与潞江东路交汇处,交通便利。这套2019年建成的住宅位于11层的中层位置,南北朝向保证采光通风。127.63平方米的三室两厅两卫毛坯房,单价仅11988元/平,总价153万,性价比突出。 该房源为毛坯状态,购房者可按照个人喜好自由设计装修方案。三室两厅的户型布局合理,满足家庭居住需求。小区建成时间较新,建筑品质有保障,11层的总高保证了舒适的居住密度。南北通透的朝向设计,让每个房间都能享受到良好的采光和通风条件。
-
业主心态问经纪人
房主诚意出的售此房 看房随时 价格好谈
-
小区配套问经纪人
门口就有学校 菜市场 商业街 生活配套 地铁5号线终点站30米
-
服务介绍问经纪人
服务介绍 本人13年的房产经验,一直本着用专业的房产知识,,我会在短的时间内帮您买好满意的房子,不让您错失任何好房,欢迎随时拨打我的电话。
-
税费分析房贷计算
满两年 没二套
-
户型解读问经纪人
南北通透三室两厅两卫 全明户型 大宽厅 采光好
周边配套
交通综合评分
查看全部超过天津3.9%的小区
-
地铁公交
9.0
-
驾车出行
8.0
-
城际交通
4.0
本月均价 13156元/m²
环比上月 下跌 1.05%
同比去年 下跌 9.85%
猜你喜欢
同小区其它房源
户型齐全,主打户型方正,厨卫不对门三居
正荣府户型主要有98平-130平的户型方正,厨卫不对门的三居 、84平-85平的户型方正,明厨,明卫,双卧朝南的二居 、150平-150平的南北通透,全明格局,户型方正的四居 。
*获取完整户型报告,同时会有免费语音讲解服务
-
13834元/㎡
本月挂牌均价
-
1.44%
环比上月
买房加房产交流群,省钱不踩雷
3000+人正在热聊
- 免费咨询
- 专业服务
- 区域解读
- 户型分析


