城市别墅 五室四厅三卫 带地下 大于房本面积倍 私产满5年
-
1190万
总价
-
5室2厅3卫
户型
-
366.05㎡
建筑面积
买房加房产交流群,省钱不踩雷
3000+人正在热聊
-
单价
32509元/平米
- 挂牌价格解析
-
楼层
1层
- 咨询楼层
-
套内
365.05㎡
- 咨询套内使用面积
-
楼型
独栋
-
朝向
南
-
装修
精装修
-
年代
2006
-
发布
2025-10-07
-
地铁
距6号线梅江道站约500米
-
咨询总首付
首付约364.2万
首付税费及佣金情况 -
深度测评
小区城市别墅(河西-瑞江)
-
更多
楼户比、楼层高度、交易历史、抵押信息
房源描述(1)
-
核心卖点问经纪人
此房私产过五年,商品房,户型方正,产权清晰,楼层佳,诚意出售价位可议。 您好: 城市别墅 这个小区是我维护盘内的小区。业主一直和我单独联系信任我,看房方便。本房源由我单独维护业主,我本人登记的房子,亲自去房子里拍的照片,跟房主签的委托,亲身带客户去房子里看过,精装修,房子保持的干净好 , 对本套房源感兴趣,可立即致电,或v信 liweijun0811 李伟军 我是一名资深的,8年的工作经验,很喜欢这份工作,目前我主做河西商圈的二手房业务,如果您有买房或卖房需求,欢迎随时来电,1 3 5 0 2 1 7 6 4 5 8 我将尽努力为您提供购房建议,解答二手房交易的相关问题 佣·金·1·个·点,大中介, 安全有保证,我和公司宗旨是:透明 公开 公正 不吃差价,后期打协议 过户 亲历亲为,没有怠慢。欢迎随时电话咨询,相信我的专业,为您置业安家保驾护航。
-
业主心态问经纪人
房东置换,诚心出售,可以再谈,欢迎看房,随时恭候。
-
小区配套问经纪人
小区地理位置佳,绿化环境优越整洁,居民素质高,物业管理完善,适宜居住
-
服务介绍问经纪人
本人做房产多年,一直本着专业的房产知识,为您服务,我会在短的时间内帮您买好满意的房子,不让您错失任何好房子,更不让您每天为买房的事烦心,欢迎随时拨打我电话。
-
税费分析房贷计算
物业费2元到3元一平方。 购买新房主要税费: 契税:90平以内:1% ;140 平收1%;140平以上收1.5%(交房后地税收取) 契税开始调整: 首套140以下契税1%,140平以上1.5% 二套140以下契税1%,140平以上2% 第三套无论面积依然是3%
-
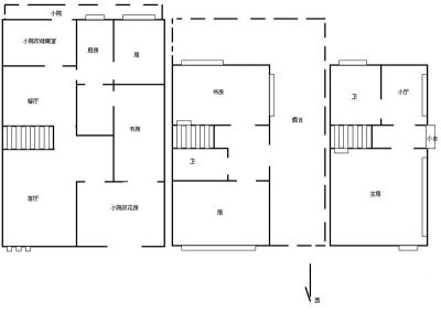
户型解读问经纪人
此房正规五室四厅三卫 南北通透 两个阳面卧室都是标准房间 主卧室出台带卫生间 一个阴面卧室很方正,厨房有窗户,客卫很大干湿分离洗衣机洗脸盆互不影响。客厅宽敞明亮大气,整齐布局合理,无浪费面积,适合三代同堂居住,
周边配套
交通综合评分
查看全部超过天津92.1%的小区
-
地铁公交
10.0
猜你喜欢
同小区其它房源
-
27111元/㎡
本月挂牌均价
-
0.09%
环比上月
买房加房产交流群,省钱不踩雷
3000+人正在热聊
- 免费咨询
- 专业服务
- 区域解读
- 户型分析


