卫津南路精装一居室 东向阳光满屋 62平仅52万
-
62万元
总价
-
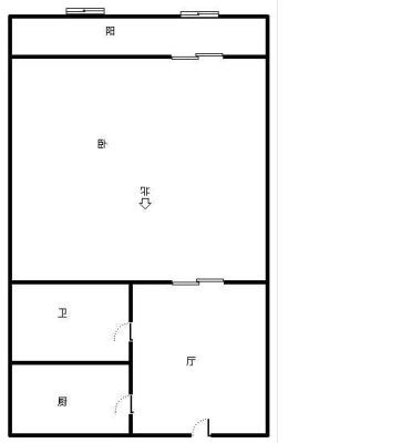
1室1厅1卫
户型
-
62㎡
建筑面积
买房加房产交流群,省钱不踩雷
3000+人正在热聊
加入群聊
-
单价
10000元/平米
- 挂牌价格解析
-
楼层
低层/6层
- 咨询楼层
-
套内
暂无数据
- 咨询套内使用面积
-
朝向
东
-
年代
2000
-
发布
2026-02-14
-
地铁
距7号线王兰庄站约442米
-
咨询总首付
首付约18.8万
首付税费及佣金情况 -
深度测评
小区高雅公寓(西青-李七庄)
-
更多
楼户比、楼层高度、交易历史、抵押信息
业主自评
-
买房71
加入房天下4831天
接电时间:09:00-22:00
这房子我住了15年,要不是工作调动真舍不得卖。62平米的一室一厅格局特别规整,东向的窗户每天早上都能晒进满屋阳光。拎包就能住。小区叫高雅公寓,就在卫津南路168号,周边生活特别方便。楼下200米就是菜市场,超市、银行、药店都在步行范围内。楼道每周都有保洁打扫。户型设计很实用,客厅有16平米,卧室13平米,厨房是L型的,操作台面足够两个人同时忙活。物业费每年300多元,在周边小区里算很实惠的。冬天暖气特别足,室温能保持在22度以上。这个价格在周边同户型里很有优势,看房提前半天约就行,我一般下班后和周末都在家。
这房子我住了15年,要不是工作调动真舍不得卖。62平米的一室一厅格局特别规整,东向的窗户每天早上都能晒进满屋阳光。拎包就能住。小区叫高雅公寓,就在卫津南路168号,周边生活特别方便。楼下200米就是菜市场,超市、银行、药店都在步行范围内。楼道每周都有保洁打扫。户型设计很实用,客厅有16平米,卧室13平米,厨房是L型的,操作台面足够两个人同时忙活。物业费每年300多元,在周边小区里算很实惠的。冬天暖气特别足,室温能保持在22度以上。这个价格在周边同户型里很有优势,看房提前半天约就行,我一般下班后和周末都在家。
周边配套
地址:天津西青区李七庄高庄子
交通综合评分
查看全部5.7
“一般”
超过天津80.8%的小区
-
地铁公交
9.0
-
驾车出行
7.0
本月均价 13111元/m²
环比上月 持平
同比去年 上涨 85.66%
猜你喜欢
同小区其它房源
户型齐全,主打二居
高雅公寓户型主要有Infinity平--Infinity平的的二居 、126平-126平的户型方正,客厅朝南,双阳台,双卧朝南的三居 。
*获取完整户型报告,同时会有免费语音讲解服务
-
20765元/㎡
本月挂牌均价
-
0.68%
环比上月
买房加房产交流群,省钱不踩雷
3000+人正在热聊
加入群聊
联系业主
免责声明:房源信息由网站用户提供,其真实性、合法性由信息提供者负责,最终以政府部门登记备案为准。本网站不声明或保证内容之正确性和可靠性,购买该房屋时,请谨慎核查。入学情况仅凭历史经验总结,在此不承诺升学事宜。请您在签订合同之前,切勿支付任何形式的费用,以免上当受骗。

