隆腾盛世龙岗地铁站六联站 一手现房 100%使用率 车接看房
-
139万
总价
-
4室2厅2卫
户型
-
97㎡
建筑面积
买房加房产交流群,省钱不踩雷
3000+人正在热聊
-
单价
14330元/平米
- 挂牌价格解析
-
楼层
中层/33层
- 咨询楼层
-
套内
96㎡
- 咨询套内使用面积
-
楼型
板楼
-
朝向
南
-
装修
精装修
-
年代
2022
-
发布
2025-03-11
-
咨询总首付
首付约31.5万
首付税费及佣金情况 -
深度测评
小区隆腾盛世(惠州-惠阳区)
-
更多
楼户比、楼层高度、交易历史、抵押信息
房源描述(1)
-
核心卖点问经纪人
推荐指数 (现房带装修) (^_-)位置处于临深位置,优先享受深圳发展红利,坪山企业进驻一千多家,岗位需求大大增加 (^_-)佰萬大盘,本地龙头开发商,临深少见的品质楼盘,品牌物业(开发商自带物业)生活品质的保障 (^_-)到深圳4公里,门口公交,楼盘大巴业主免费乘坐,天天两地通勤不是梦 (^_-)看得见的配套,北邻壹中心商圈,南接万达广场,自带商业综合体,已进驻华润万家,菜市场,福鑫购物广场,万达影院,KFC下楼, (^_-)深圳第四人民医院萨米医疗,坪山三甲医院,中大惠亚医院,可以用两地医保,为家人保驾护航 ?高品质住宅?:隆腾盛世提供多种户型选择,从高层住宅到别墅应有尽有。例如,81㎡的三房设计空间利用得相当好,装修标准高,使用了进口品牌,居住舒适且安心? ?便捷交通?:项目位于惠州市惠阳区新圩镇,龙岗大道(205国道)与东风路交汇处,交通便利。周边有多条主要道路,出行方便,未来发展空间大? ?优质配套设施?:项目周边设施完善,包括双语国际、体育场所和游泳池等,适合家庭居住? 此外,项目周边3公里范围内有2个一级及以上医院和2个商场,满足日常医疗和购物需求? ?低密度高品质住宅?:隆腾盛世整体规划包括17栋高层住宅、60套双拼别墅和4栋独栋别墅,绿化率超过35%,采用人车分流设计,是市面上少有的低密度、高品质住宅项目? ?未来发展规划?:项目位于粤港澳湾区“一”都市圈范围内,处于深圳东进门户区域,未来可能成为深圳都市圈中心位置,具有较高的投资价值和发展潜力?
-
业主心态问经纪人
【本司已与开发商签署联动,通过我司推介可享额外折/扣】 【购房】:我们提供免费的车辆接送,可带看多个楼盘进行综合对比。外地客户或自驾报销费用 【公司优势】:我们公司是由本楼盘开发商直接代理,可以拿到保留房源和公司优惠。并有渠道解决首付不够的问题。 【售后保障】:保证给客户提供专业的服务,耐心负责协助客户操作手续。帮助客户解决后续疑难杂症。 【理念】:拒绝发布虚假信息来诱导客户,必须陪同解决客户后期手续,让客户对我们服务认可。 本人做房产多年,一直本着专业的房产知识,为您服务,我会在短的时间内帮您买好满意的房子,不让您错失任何好房子,更不让您每天为买房的事烦心,欢迎随时拨打我电话。
-
小区配套问经纪人
小区地理位置佳,绿化环境优越整洁,居民素质高,物业管理完善,适宜居住
-
服务介绍问经纪人
本人做房产多年,一直本着专业的房产知识,为您服务,我会在短的时间内帮您买好满意的房子,不让您错失任何好房子,更不让您每天为买房的事烦心,欢迎随时拨打我电话。
-
税费分析房贷计算
关于本房的税费信息情况,请电话联系我,我将详细的为您讲解!
-
户型解读问经纪人
房屋拥有相对宽松的尺寸,布局通透,动静分离,设计豪华
周边配套
交通综合评分
查看全部超过深圳47.3%的小区
-
地铁公交
5.0
本月均价 19886元/m²
环比上月 下跌 2%
同比去年 下跌 3.22%
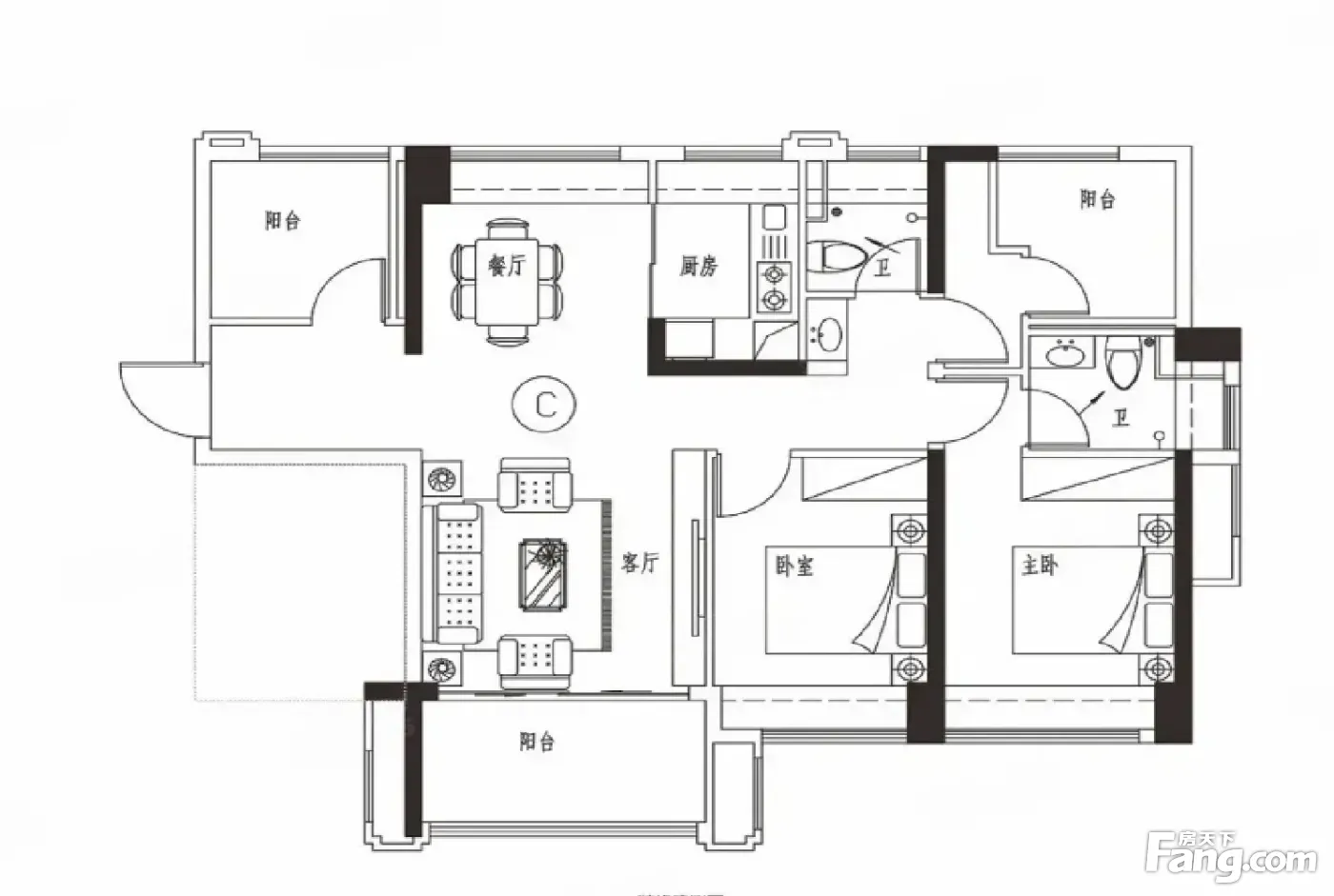
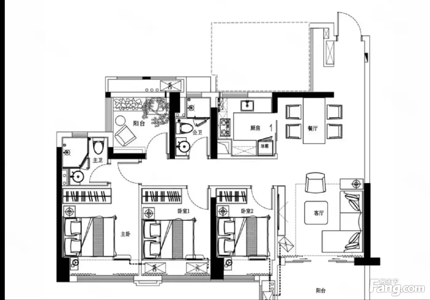
户型齐全,主打全明格局,户型方正,U型厨房,大面宽阳台三居
隆腾盛世户型主要有81平-129平的全明格局,户型方正,U型厨房,大面宽阳台的三居 、239平-255平的全明格局,户型方正,主卧带卫,带衣帽间,U型厨房,双阳台,大面宽阳台,入户花园的其他居 、90平-97平的全明格局,户型方正,主卧套间,U型厨房,双阳台,大面宽阳台的二居 。
*获取完整户型报告,同时会有免费语音讲解服务
买房加房产交流群,省钱不踩雷
3000+人正在热聊
- 免费咨询
- 专业服务
- 区域解读
- 户型分析

