金沙美丽都 2室1厅 南
-
45.8万
总价
-
2室1厅
户型
-
67.38㎡
建筑面积
买房加房产交流群,省钱不踩雷
3000+人正在热聊
加入群聊
-
单价
6798元/平米
- 挂牌价格解析
-
楼层
中楼层/25层
- 咨询楼层
-
套内
暂无数据
- 咨询套内使用面积
-
楼型
板楼
-
朝向
南
-
装修
其他
-
供暖
集中供暖
-
发布
2025-11-26
-
地铁
距3号线宁官站约800米
-
咨询总首付
首付约16.6万
首付税费及佣金情况 -
深度测评
小区金沙美丽都(铁西-经济开发区)
-
更多
楼户比、楼层高度、交易历史、抵押信息
周边配套
地址:经济技术开发区大明湖街18号
交通综合评分
查看全部6.6
“较好”
超过沈阳61.6%的小区
-
地铁公交
9.0
-
驾车出行
10.0
本月均价 7484元/m²
环比上月 下跌 0.67%
同比去年 下跌 4.75%
猜你喜欢
同小区其它房源
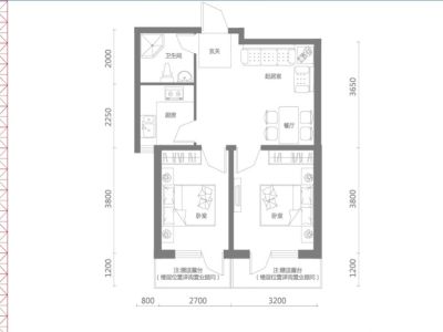
户型齐全,主打露台,南北通透,厨卫不对门,主卧朝南二居
金沙美丽都户型主要有65平-78平的露台,南北通透,厨卫不对门,主卧朝南的二居 、39平-43平的户型方正,主卧朝南的一居 、84平-114平的南北通透,厨卫不对门,主卧朝南的三居 。
*获取完整户型报告,同时会有免费语音讲解服务
-
6370元/㎡
本月挂牌均价
-
1.68%
环比上月
买房加房产交流群,省钱不踩雷
3000+人正在热聊
加入群聊
免责声明:房源信息由网站用户提供,其真实性、合法性由信息提供者负责,最终以政府部门登记备案为准。本网站不声明或保证内容之正确性和可靠性,购买该房屋时,请谨慎核查。入学情况仅凭历史经验总结,在此不承诺升学事宜。请您在签订合同之前,切勿支付任何形式的费用,以免上当受骗。



