房子南北通透户型,家具家电齐全,拎包入住
-
36万
总价
-
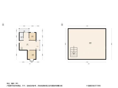
2室2厅
户型
-
80.93㎡
建筑面积
买房加房产交流群,省钱不踩雷
3000+人正在热聊
加入群聊
-
单价
4449元/平米
- 挂牌价格解析
-
楼层
中楼层/7层
- 咨询楼层
-
套内
80.93㎡
- 咨询套内使用面积
-
楼型
板楼
-
朝向
南北
-
装修
精装
-
供暖
集中供暖
-
发布
2025-08-26
-
咨询总首付
首付约11.6万
首付税费及佣金情况 -
深度测评
小区阳光新嘉园(浑南-白塔堡)
-
更多
楼户比、楼层高度、交易历史、抵押信息
周边配套
地址:浑南白塔街28号
交通综合评分
查看全部6.2
“较好”
超过沈阳12.8%的小区
-
地铁公交
5.0
-
驾车出行
10.0
-
城际交通
4.0
本月均价 4429元/m²
环比上月 上涨 2.16%
同比去年 下跌 12.04%
猜你喜欢
同小区其它房源
户型齐全,主打主卧朝南二居
阳光新嘉园户型主要有62平-110平的主卧朝南的二居 、63平-145平的户型方正,双阳台,主卧朝南的三居 、54平-67平的户型方正,明厨,客厅朝南的一居 。
*获取完整户型报告,同时会有免费语音讲解服务
-
7962元/㎡
本月挂牌均价
-
0.79%
环比上月
买房加房产交流群,省钱不踩雷
3000+人正在热聊
加入群聊
免责声明:房源信息由网站用户提供,其真实性、合法性由信息提供者负责,最终以政府部门登记备案为准。本网站不声明或保证内容之正确性和可靠性,购买该房屋时,请谨慎核查。入学情况仅凭历史经验总结,在此不承诺升学事宜。请您在签订合同之前,切勿支付任何形式的费用,以免上当受骗。



