绿地香颂(奉贤)(别墅) 6室2厅 南 北
-
630万
总价
-
6室2厅
户型
-
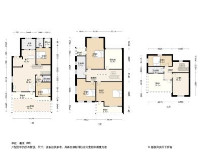
419.58㎡
建筑面积
买房加房产交流群,省钱不踩雷
3000+人正在热聊
加入群聊
-
单价
15016元/平米
- 挂牌价格解析
-
楼层
2层
- 咨询楼层
-
套内
暂无数据
- 咨询套内使用面积
-
楼型
板楼
-
朝向
南北
-
装修
简装
-
供暖
自供暖
-
发布
2025-07-20
-
地铁
暂无数据
-
咨询总首付
首付约189.5万
首付税费及佣金情况 -
深度测评
小区绿地香颂别墅(奉贤)(奉贤-海湾旅游区)
-
更多
楼户比、楼层高度、交易历史、抵押信息
周边配套
地址:海马路5888弄
交通综合评分
查看全部4.7
“一般”
超过上海51.4%的小区
-
地铁公交
5.0
-
驾车出行
9.0
猜你喜欢
同小区其它房源
户型齐全,主打户型方正,明卫,明厨,客厅朝南,全明格局,主卧朝南三居
绿地香颂别墅(奉贤)户型主要有128平-419平的户型方正,明卫,明厨,客厅朝南,全明格局,主卧朝南的三居 、177平-419平的户型方正,客厅朝南,明卫,主卧朝南的四居 。
*获取完整户型报告,同时会有免费语音讲解服务
-
18878元/㎡
本月挂牌均价
-
持平
环比上月
买房加房产交流群,省钱不踩雷
3000+人正在热聊
加入群聊
免责声明:房源信息由网站用户提供,其真实性、合法性由信息提供者负责,最终以政府部门登记备案为准。本网站不声明或保证内容之正确性和可靠性,购买该房屋时,请谨慎核查。入学情况仅凭历史经验总结,在此不承诺升学事宜。请您在签订合同之前,切勿支付任何形式的费用,以免上当受骗。



