复式房,景观房,全南户型,品质小区,繁华地段,简约风格,精装好房,带产权车位
-
3500万
总价
-
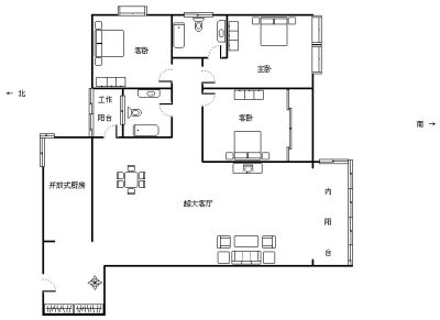
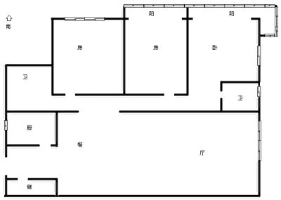
3室2厅
户型
-
221.33㎡
建筑面积
买房加房产交流群,省钱不踩雷
3000+人正在热聊
加入群聊
-
单价
158135元/平米
- 挂牌价格解析
-
楼层
高楼层/31层
- 咨询楼层
-
套内
暂无数据
- 咨询套内使用面积
-
朝向
南
-
装修
精装
-
年代
2000
-
发布
2024-09-01
-
地铁
距10号线(新江湾城-虹桥火车站)上海图书馆站约954米
-
咨询总首付
首付约1114.7万
首付税费及佣金情况 -
深度测评
小区丁香公寓(长宁-镇宁路)
-
更多
楼户比、楼层高度、交易历史、抵押信息
周边配套
地址:华山路800弄
交通综合评分
查看全部6.7
“较好”
超过上海88.9%的小区
-
地铁公交
10.0
-
城际交通
9.0
本月均价 124146元/m²
环比上月 持平
同比去年 上涨 14.93%
猜你喜欢
同小区其它房源
户型齐全,主打户型方正,明厨,双阳台,主卧朝南二居
丁香公寓户型主要有80平-128平的户型方正,明厨,双阳台,主卧朝南的二居 、120平-177平的明卫,客厅朝南,双阳台的三居 、152平-275平的户型方正,明卫,明厨的四居 。
*获取完整户型报告,同时会有免费语音讲解服务
买房加房产交流群,省钱不踩雷
3000+人正在热聊
加入群聊
免责声明:房源信息由网站用户提供,其真实性、合法性由信息提供者负责,最终以政府部门登记备案为准。本网站不声明或保证内容之正确性和可靠性,购买该房屋时,请谨慎核查。入学情况仅凭历史经验总结,在此不承诺升学事宜。请您在签订合同之前,切勿支付任何形式的费用,以免上当受骗。



