一楼带大天井,00年小区,一梯两户
-
240万
总价
-
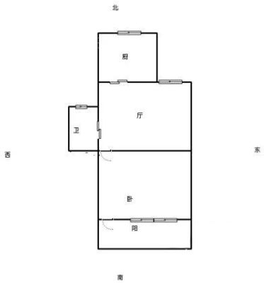
1室1厅1卫
户型
-
49.74㎡
建筑面积
-
单价
48251元/平米
- 挂牌价格解析
-
楼层
低楼层/6层
- 咨询楼层
-
套内
暂无数据
- 咨询套内使用面积
-
楼型
板楼
-
朝向
南
-
装修
毛坯
-
供暖
自供暖
-
年代
1998
-
发布
2025-08-16
-
地铁
距10号线(新江湾城-虹桥火车站)上海动物园站约556米
-
咨询总首付
首付约74.6万
首付税费及佣金情况 -
深度测评
小区张泾小区(长宁-西郊)
-
更多
楼户比、楼层高度、交易历史、抵押信息
周边配套
地址:剑河路2001弄
交通综合评分
查看全部9.7
“非常好”
超过上海7.2%的小区
-
地铁公交
10.0
-
驾车出行
10.0
-
城际交通
9.0
本月均价 47201元/m²
环比上月 持平
同比去年 下跌 5.56%
猜你喜欢
同小区其它房源
户型齐全,主打明厨,明卫,客厅朝南二居
张泾小区户型主要有71平-71平的明厨,明卫,客厅朝南的二居 、52平-52平的户型方正,明厨,明卫,客厅朝南,全明格局,主卧朝南的一居 、94平-100平的户型方正,明卫,明厨,双阳台的三居 。
*获取完整户型报告,同时会有免费语音讲解服务
-
73007元/㎡
本月挂牌均价
-
持平
环比上月
免责声明:房源信息由网站用户提供,其真实性、合法性由信息提供者负责,最终以政府部门登记备案为准。本网站不声明或保证内容之正确性和可靠性,购买该房屋时,请谨慎核查。入学情况仅凭历史经验总结,在此不承诺升学事宜。请您在签订合同之前,切勿支付任何形式的费用,以免上当受骗。



