花木·牡丹路186弄·2室·1厅
-
390万
总价
-
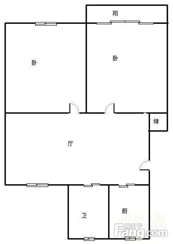
2室1厅1卫
户型
-
66.02㎡
建筑面积
买房加房产交流群,省钱不踩雷
3000+人正在热聊
-
单价
59073元/平米
- 挂牌价格解析
-
楼层
中楼层/6层
- 咨询楼层
-
套内
暂无数据
- 咨询套内使用面积
-
楼型
板楼
-
朝向
南
-
装修
精装
-
年代
1994
-
发布
2025-08-09
-
地铁
距2号线世纪公园站约739米
-
咨询总首付
首付约97.7万
首付税费及佣金情况 -
深度测评
小区牡丹小区(浦东-世纪公园)
-
更多
楼户比、楼层高度、交易历史、抵押信息
房源描述(2)
-
核心卖点问经纪人
此房位于牡丹小区中心位置不输牡丹王之称 房主一手买进,见证了房主的步步高升 此房满五年不 产权夫妻加子共有 无、无户口、无租约 产权清晰 房型格局人性,南北主次卧私密性高、通风效果佳
-
业主心态问经纪人
少主新婚、应女方要长宁一小区电梯房! 故此售此房! 关乎少主幸福,房主到价签字!
-
小区配套问经纪人
小区地理位置佳,绿化率高,环境整洁,居民素质高。
-
服务介绍问经纪人
实事求是,认真负责 为安全的交易流程保驾护航 为双方成本实行分控降低 .
-
税费分析房贷计算
关于本房税费分析详情,请电话联系我,我将提供详细的税费情况。
-
交通出行问经纪人
公交:01路丶106路丶119路丶211路丶219路丶237路丶300路丶322路丶351路丶363路 地铁:2号线世纪公园站丶4号线蓝村路站丶6号线丶7号线芳华路站。
周边配套
交通综合评分
查看全部超过上海47.8%的小区
-
地铁公交
10.0
本月均价 62568元/m²
环比上月 持平
同比去年 下跌 13.76%
猜你喜欢
同小区其它房源
户型齐全,主打明卫,客厅朝南,双卧朝南二居
牡丹小区户型主要有54平-73平的明卫,客厅朝南,双卧朝南的二居 、41平-48平的户型方正,明卫,明厨,客厅朝南的一居 、80平-97平的户型方正,明厨,明卫的三居 。
*获取完整户型报告,同时会有免费语音讲解服务
-
83647元/㎡
本月挂牌均价
-
持平
环比上月
买房加房产交流群,省钱不踩雷
3000+人正在热聊
- 免费咨询
- 专业服务
- 区域解读
- 户型分析


