雅戈尔长风8号 2室2厅 南
-
1080万
总价
-
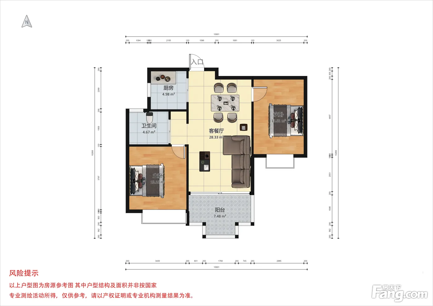
2室2厅1卫
户型
-
94.35㎡
建筑面积
买房加房产交流群,省钱不踩雷
3000+人正在热聊
加入群聊
-
单价
114468元/平米
- 挂牌价格解析
-
楼层
低楼层/22层
- 咨询楼层
-
套内
暂无数据
- 咨询套内使用面积
-
楼型
板楼
-
朝向
南
-
装修
精装
-
供暖
自供暖
-
发布
2025-07-22
-
地铁
距13号线真北路站约593米
-
咨询总首付
首付约836.7万
首付税费及佣金情况 -
深度测评
小区雅戈尔长风8号(普陀-长风)
-
更多
楼户比、楼层高度、交易历史、抵押信息
房源描述(1)
-
核心卖点问经纪人
长风雅戈尔8号2室2厅1卫1阳台5/22层
周边配套
地址:泸定路555弄
交通综合评分
查看全部8.2
“较好”
超过上海15.6%的小区
-
地铁公交
10.0
-
驾车出行
10.0
-
城际交通
4.0
本月均价 108384元/m²
环比上月 持平
同比去年 下跌 5.05%
猜你喜欢
同小区其它房源
户型齐全,主打户型方正,明卫,明厨,主卧朝南二居
雅戈尔长风8号户型主要有94平-120平的户型方正,明卫,明厨,主卧朝南的二居 、187平-198平的户型方正,明厨,明卫,双卧朝南,主卧朝南的三居 、236平-236平的飘窗的四居 。
*获取完整户型报告,同时会有免费语音讲解服务
-
64241元/㎡
本月挂牌均价
-
持平
环比上月
买房加房产交流群,省钱不踩雷
3000+人正在热聊
加入群聊
- 免费咨询
- 专业服务
- 区域解读
- 户型分析
免责声明:房源信息由网站用户提供,其真实性、合法性由信息提供者负责,最终以政府部门登记备案为准。本网站不声明或保证内容之正确性和可靠性,购买该房屋时,请谨慎核查。入学情况仅凭历史经验总结,在此不承诺升学事宜。请您在签订合同之前,切勿支付任何形式的费用,以免上当受骗。

