明园世纪城新出 精装修 俯瞰衡复区 急售 看房方便
-
1200万
总价
-
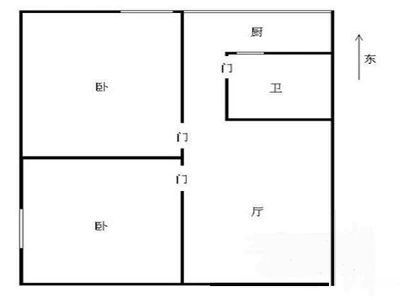
2室2厅1卫
户型
-
117.36㎡
建筑面积
买房加房产交流群,省钱不踩雷
3000+人正在热聊
-
单价
102249元/平米
- 挂牌价格解析
-
楼层
高层/21层
- 咨询楼层
-
套内
100.93㎡
- 咨询套内使用面积
-
楼型
砖楼
-
朝向
南北
-
装修
精装修
-
年代
2003
-
发布
2026-01-28
-
地铁
距1号线陕西南路站约595米
-
咨询总首付
首付约844.5万
首付税费及佣金情况 -
深度测评
小区明园世纪城(徐汇-建国西路)
-
更多
楼户比、楼层高度、交易历史、抵押信息
-
核验码
202205845870
房源描述(1)
-
核心卖点问经纪人
一、房源优势正规户型,日照充足,空气流畅 二、房屋介绍 格局合理,没有浪费面积,利用空间大,是的好户型 三、社区配套 1、环境优雅,低密度社区 2、小区绿化高 四、周边配套 地理位置得天独厚,出行方便! 五、理由 让您体验惬意的生活,充分享受生活的美!
-
业主心态问经纪人
业主很信任我,我能了解业主卖房新的动态。目前市场交易量平稳,政策已经基本稳定,是市场触底入手的好时候。请不要错过性价比高的好房。
-
小区配套问经纪人
小区居民素质高,配套设施齐全,地理位置好,交通便利。
-
服务介绍问经纪人
真诚服务,始终如一,为您提供专业的服务,从配对房源到带看,从签订协议到过户交割,安全规范的操作流程,高效周到的服务态度! 更多好房,请点击右上角头像!欢迎您来尽情选购! 推-荐-指-数★★★★★:
-
税费分析房贷计算
产权干净,税费清晰,欢迎来电咨询该房屋详情,静候您的来电!
-
户型解读问经纪人
房屋户型方正,景观布局合理,设计实用,空间舒适,格局优越,采光通风良好
周边配套
交通综合评分
查看全部超过上海48.1%的小区
-
地铁公交
10.0
-
城际交通
9.0
本月均价 105452元/m²
环比上月 持平
同比去年 下跌 2.67%
猜你喜欢
同小区其它房源
户型齐全,主打明卫,明厨,客厅朝南,全明格局,户型方正,独立衣帽间二居
明园世纪城户型主要有119平-191平的明卫,明厨,客厅朝南,全明格局,户型方正,独立衣帽间的二居 、165平-204平的独立衣帽间,明厨,明卫,双阳台的三居 。
*获取完整户型报告,同时会有免费语音讲解服务
-
117837元/㎡
本月挂牌均价
-
持平
环比上月
买房加房产交流群,省钱不踩雷
3000+人正在热聊
- 免费咨询
- 专业服务
- 区域解读
- 户型分析


