南郊庄园。带电梯。纯毛坯独栋别墅。有钥匙,恒贤,崇实
-
3968万
总价
-
9室3厅8卫
户型
-
705.2㎡
建筑面积
买房加房产交流群,省钱不踩雷
3000+人正在热聊
加入群聊
-
单价
56268元/平米
- 挂牌价格解析
-
楼层
1层
- 咨询楼层
-
套内
暂无数据
- 咨询套内使用面积
-
楼型
独栋
-
朝向
东
-
装修
毛坯
-
年代
2010
-
发布
2026-01-19
-
咨询总首付
首付约1189万
首付税费及佣金情况 -
深度测评
小区南郊名墅(奉贤-南桥)
-
更多
楼户比、楼层高度、交易历史、抵押信息
-
核验码
202509688245
房源描述(1)
-
核心卖点问经纪人
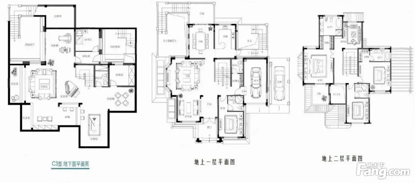
我去看过实房,并且拍了视频和图片,小区环境清幽,安静,出入方便。 在售房源介绍小区:《南郊庄园》; 产权清晰无 无纠纷无抵押,看中可适当商量。 建筑面积:产证面积705.20平米,实用面积大。带地下室 房屋户型:9房3厅8卫(6房朝南,3房朝北,厅朝南,南北通透户型) 房屋装修:毛坯
-
业主心态问经纪人
业主委托我挂牌出售, 时间我能了解业主卖房新的动态。目前市场交易量骤增,不要错过好房。注:照片实景拍摄,因安居客上传照片有限,(烦请劳驾查看VR全景,1080P高清大图,给您不一样的体验)!《请认准房地产经纪人证书!》《本人持证上岗》,杜绝野鸡中介,本人不喜欢用套路!
-
小区配套问经纪人
位置:小区地理位置佳,绿化率高,居民素质高 配套:有健身器材,小型篮球场,可供小区居民使用 车位:停车位充足,建有地上停车场和地下车库 保安:小区内24保安巡逻
-
服务介绍问经纪人
本人从事房地产多年,公司有大量好房源,欢迎进入我的店铺查看,欢迎随时电话咨询,相信我的专业,为您置业安家保驾护航。
周边配套
地址:展园路300弄
交通综合评分
查看全部6.2
“较好”
超过上海47.2%的小区
-
地铁公交
8.0
-
驾车出行
10.0
-
20260元/㎡
本月挂牌均价
-
持平
环比上月
买房加房产交流群,省钱不踩雷
3000+人正在热聊
加入群聊
- 免费咨询
- 专业服务
- 区域解读
- 户型分析
免责声明:房源信息由网站用户提供,其真实性、合法性由信息提供者负责,最终以政府部门登记备案为准。本网站不声明或保证内容之正确性和可靠性,购买该房屋时,请谨慎核查。入学情况仅凭历史经验总结,在此不承诺升学事宜。请您在签订合同之前,切勿支付任何形式的费用,以免上当受骗。


