小区中间位置,好楼层,看房方便
-
509万
总价
-
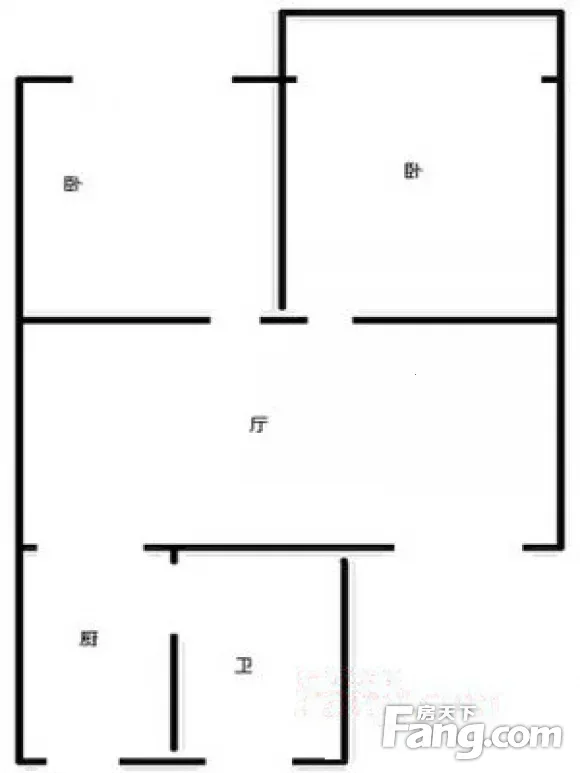
2室1厅1卫
户型
-
78.4㎡
建筑面积
买房加房产交流群,省钱不踩雷
3000+人正在热聊
-
单价
64923元/平米
- 挂牌价格解析
-
楼层
中层/6层
- 咨询楼层
-
套内
暂无数据
- 咨询套内使用面积
-
楼型
板楼
-
朝向
南北
-
装修
精装修
-
年代
2003
-
发布
2025-11-26
-
地铁
距2号线世纪公园站约338米
-
咨询总首付
首付约155.8万
首付税费及佣金情况 -
深度测评
小区花木鑫丰苑(浦东-世纪公园)
-
更多
楼户比、楼层高度、交易历史、抵押信息
-
核验码
202102123681
房源描述(1)
-
核心卖点问经纪人
2003年拿地,06年交房入住 此房为一手买进,满五年 双朝阳尽享阳光的沐浴,给家人一个无菌的环境 产权清晰,无户口、无 寻找有缘购房者,价格可小刀
-
业主心态问经纪人
此房年前曾售出 由于购房者特殊原因导致此房不可正常交易! 房主仁义,不追究其违约责任。 终达成和平解除约定! 现房主刚购新房马上支付第二笔款项。 出于无奈出售
-
小区配套问经纪人
小区地理位置佳,绿化率高,环境整洁,居民素质高。
-
服务介绍问经纪人
实事求是,认真负责 为安全的交易流程保驾护航 为双方成本实行把控降低 .
-
税费分析房贷计算
关于本房税费分析详情,请电话联系我,我将提供详细的税费情况。
-
交通出行问经纪人
大桥二线丶花木1路丶798路丶936路
周边配套
交通综合评分
查看全部超过上海73.3%的小区
-
地铁公交
10.0
本月均价 75417元/m²
环比上月 持平
同比去年 下跌 15.11%
猜你喜欢
同小区其它房源
户型齐全,主打户型方正,明厨,明卫,客厅朝南二居
花木鑫丰苑户型主要有78平-79平的户型方正,明厨,明卫,客厅朝南的二居 、79平-98平的户型方正,明卫,明厨,客厅朝南,主卧朝南的三居 、54平-54平的户型方正,明厨,明卫,客厅朝南的一居 。
*获取完整户型报告,同时会有免费语音讲解服务
-
82577元/㎡
本月挂牌均价
-
持平
环比上月
买房加房产交流群,省钱不踩雷
3000+人正在热聊
- 免费咨询
- 专业服务
- 区域解读
- 户型分析

