东方庭院 288平5居 北向精装修
-
900万
总价
-
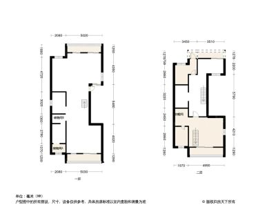
5室3厅4卫
户型
-
288㎡
建筑面积
买房加房产交流群,省钱不踩雷
3000+人正在热聊
-
单价
31250元/平米
- 挂牌价格解析
-
楼层
3层
- 咨询楼层
-
套内
暂无数据
- 咨询套内使用面积
-
楼型
独栋
-
朝向
北
-
装修
精装修
-
年代
2018
-
发布
2025-10-24
-
咨询总首付
首付约278.1万
首付税费及佣金情况 -
深度测评
小区东方庭院(青浦-朱家角)
-
更多
楼户比、楼层高度、交易历史、抵押信息
-
核验码
202207334007
房源描述(1)
-
核心卖点问经纪人
朱家角,(江南古镇朱家角),这里的环境资源得天独厚,淀山湖、大淀湖、淀浦河等自然水系纵横交错;千年古镇朱家角,人文底蕴丰厚,这里是西上海别墅群落天然集聚地! 朱家角,中国长三角一体化先行示范区核心,上海对接浙江嘉善(嘉兴)、上海对接江苏昆山(苏州)桥头堡,上海再发展新引擎! 17号线朱家角站、东方绿洲站大虹桥及市区,17号线延伸线浙江嘉善、江苏昆山等;A9、G50、G318等快捷干道市区及周边; 华为中国芯片研发基地正加紧落成,上海红房子医院、上海国际基地、兰生复旦青浦朱家角(幼儿到)等一大批前沿项目加速建设中,媲美上海的一流教于资源、医疗资源等,助力朱家角事业腾飞!
-
业主心态问经纪人
房主当年一手买进该房屋,样板间装修一直空置,目前已经考虑成熟,诚意出手、诚心出售!
-
小区配套问经纪人
小区的绿化很好,环境优美,安静舒适,居民素质高,物业管理完善。
-
服务介绍问经纪人
本人从事房地产多年,公司有大量好房源,欢迎进入我的店铺查看,欢迎随时电话咨询,相信我的专业,为您置业安家保驾护航。
-
税费分析房贷计算
新房: 房税费首套房契税1至3个点。物业费2元到3元一平方。 购买新房主要税费: 契税:90平以内:1% ;90-124 平收1.5%;124平以上收2%(交房后地税收取) 注:以上收费仅供参考
交通综合评分
查看全部超过上海88.0%的小区
-
地铁公交
9.0
-
驾车出行
9.0
猜你喜欢
同小区其它房源
户型齐全,主打户型方正,客厅朝南,双阳台,明卫,独立衣帽间四居
户型主要有199平-288平的户型方正,客厅朝南,双阳台,明卫,独立衣帽间的四居 、185平-285平的户型方正,明厨,明卫,客厅朝南,独立衣帽间,主卧朝南的三居 。
*获取完整户型报告,同时会有免费语音讲解服务
-
28423元/㎡
本月挂牌均价
-
持平
环比上月
买房加房产交流群,省钱不踩雷
3000+人正在热聊
- 免费咨询
- 专业服务
- 区域解读
- 户型分析

