康桥18号地铁口 大花园联排边套 毛坯房急卖低于市价300万
-
1430万
总价
-
5室2厅4卫
户型
-
300㎡
建筑面积
买房加房产交流群,省钱不踩雷
3000+人正在热聊
-
单价
47667元/平米
- 挂牌价格解析
-
楼层
3层
- 咨询楼层
-
套内
299㎡
- 咨询套内使用面积
-
楼型
双拼
-
朝向
北
-
装修
毛坯
-
年代
2012
-
发布
2025-11-24
-
地铁
距18号线康桥站约922米
-
咨询总首付
首付约429.1万
首付税费及佣金情况 -
深度测评
小区绿地上河院(浦东-康桥)
-
更多
楼户比、楼层高度、交易历史、抵押信息
-
核验码
202000196747
房源描述(1)
-
核心卖点问经纪人
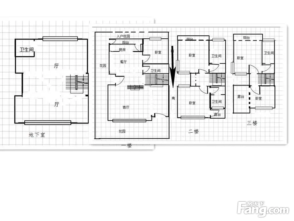
谢谢您在百忙之中浏览我的房源,本人从事房产多年主要做周康板块及周边板块的高端住宅别墅豪宅。本人交易经验丰富,市场分析精准,代理房源多,看房车接车送,交易全程跟踪服务代办。更多好房欢迎您来电咨询。 VP:1 3 5 6 4 9 2 7 2 8 2.朱经理 理由: 1.地段:绿地上河院地处浦东外环外,康桥18号地铁口附近。2012年开发的纯联排别墅住宅。小区不大一共150套别墅。小区出行很便利,一刻钟就可以到陆家嘴,前滩,张江科技园。紧邻机场联络线地铁。 2.房型:此房是联排别墅边套,地面三层带大露台,附赠全明地下室。北入户,侧面进门南花园北花园可以停2部车。进门玄关,玄关上部挑空可以打出来,客厅朝南带落地窗挑高大气。餐厅朝东朝南和客厅分开的,餐厅北面是半开放的厨房,厨房外面是阳台还可以阔出去。厨房隔壁是一个朝北的房间,可以做老人房。地下室全明户型框架结构根据自己的需求设计。旋转的楼梯中间可以加装电梯。二楼原始2个卧室分别在楼梯的南面和北面都是朝南带落地窗带大阳台。楼梯口挑空部分可以搭出一个书房。三楼也是2个卧室和二楼一样的布局。
-
业主心态问经纪人
业主置换航头独栋别墅,房子已经看好了,诚心出售看中价格好谈。
-
小区配套问经纪人
小区门口隔壁不远就是农贸市场,紧邻外环,康桥活力城。
-
服务介绍问经纪人
本人从事房产多年,主要做康桥,周浦,航头板块的住宅,别墅豪宅。可来/电/咨/询。 :135—6492—7282朱经理:135—6492—7282冰山一角。或点击右上角我的头像,进入我的店铺查看
-
税费分析房贷计算
别墅的税费和普通住宅不一样的。别墅的税费要以交易中心的评估价为主要参考。增值税是:评估价-买进发票价的差额的5.05% 个税是评估价的2%,契税(名下一套住宅)是评估价的1.5%,(名下二套住宅)是评估价的3%。具体税费额度请、来、电,咨,询。 .朱经理 :.冰山一角
-
户型解读问经纪人
标准5房设计全南户型。每个卧室都是套房。
周边配套
交通综合评分
查看全部超过上海51.5%的小区
-
地铁公交
8.0
-
驾车出行
10.0
猜你喜欢
同小区其它房源
户型齐全,主打明卫,双阳台,主卧朝南四居
绿地上河院户型主要有299平-299平的明卫,双阳台,主卧朝南的四居 、313平-313平的明卫,双阳台,双卧朝南,主卧朝南的五居 。
*获取完整户型报告,同时会有免费语音讲解服务
买房加房产交流群,省钱不踩雷
3000+人正在热聊
- 免费咨询
- 专业服务
- 区域解读
- 户型分析


