专属委托0.8%!稀缺全栋新式里弄南北通透全明户型
-
3200万
总价
-
5室3厅3卫
户型
-
180㎡
建筑面积
买房加房产交流群,省钱不踩雷
3000+人正在热聊
-
单价
177778元/平米
- 挂牌价格解析
-
楼层
底层/3层
- 咨询楼层
-
套内
暂无数据
- 咨询套内使用面积
-
楼型
板楼
-
朝向
南北
-
装修
简装修
-
年代
1936
-
发布
2025-09-13
-
地铁
距2号线南京西路站约483米
-
咨询总首付
首付约1019.2万
首付税费及佣金情况 -
深度测评
小区静安别墅公寓(静安-南京西路)
-
更多
楼户比、楼层高度、交易历史、抵押信息
-
核验码
202510122438
房源描述(1)
-
核心卖点问经纪人
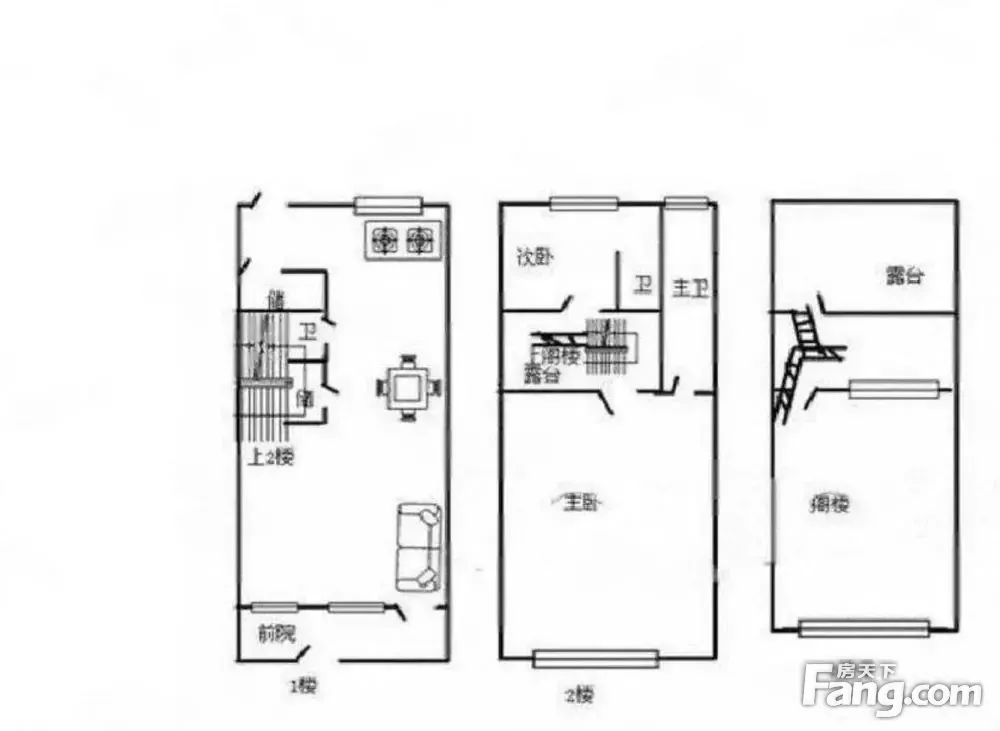
1.2层带楼带的花园小洋房,装修全 2.,可做户外烧烤,或是宠物的天堂 3.独栋温情老洋房,四面临空,两室两厅一卫一花园一,麻雀虽小五脏俱全;弄堂宽敞,可停车。
-
业主心态问经纪人
房东赵姐诚心出售此房,阿姐因为工作调动,现在要去国外那边去上班,阿姐一家人都去那边,因为小孩也去也需要她父母再带,因为不经常在国内,而且这么大房子也不能空着,所以才打算把房子卖了去国外的,房东长期生活在国外的,已经在国外买了房子,这次回国就是想把国内的资产处理掉的。我和房东一年前就认识了,房东是比较讲诚信的,比较讲究缘分,一年前也是偶然的机会认识的,这次要卖掉房子就想到了我,我和房东关系也是比较好的您有什么问题我去帮您谈,但是前提非诚勿扰。
-
小区配套问经纪人
小区居民素质高,配套设施齐全,地理位置好,交通便利。
-
服务介绍问经纪人
本人从事房地产多年,公司有大量好房源,欢迎进入我的店铺查看,欢迎随时电话咨询,相信我的专业,为您置业安家保驾护航。
-
税费分析房贷计算
产权干净,税费清晰,欢迎来电咨询该房屋详情,静候您的来电!
周边配套
交通综合评分
查看全部超过上海61.2%的小区
-
地铁公交
10.0
-
城际交通
9.0
本月均价 98397元/m²
环比上月 持平
同比去年 下跌 13.6%
猜你喜欢
同小区其它房源
-
104192元/㎡
本月挂牌均价
-
持平
环比上月
买房加房产交流群,省钱不踩雷
3000+人正在热聊
- 免费咨询
- 专业服务
- 区域解读
- 户型分析

