07花园式小区,lcm正对面河景房,地铁六号线北洋泾站随时看
-
780万
总价
-
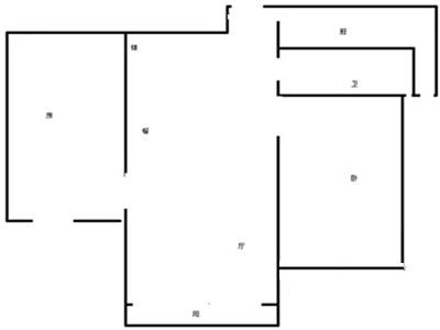
2室2厅1卫
户型
-
91.6㎡
建筑面积
买房加房产交流群,省钱不踩雷
3000+人正在热聊
-
单价
85153元/平米
- 挂牌价格解析
-
楼层
中层/18层
- 咨询楼层
-
套内
暂无数据
- 咨询套内使用面积
-
楼型
板楼
-
朝向
南北
-
装修
精装修
-
年代
2007
-
发布
2026-01-20
-
地铁
距6号线北洋泾路站约552米
-
咨询总首付
首付约424.5万
首付税费及佣金情况 -
深度测评
小区名门河滨花园(浦东-洋泾)
-
更多
楼户比、楼层高度、交易历史、抵押信息
-
核验码
202307899138
房源描述(1)
-
核心卖点问经纪人
①.【户型介绍】:两房朝南,厨卫全明。 ②.【位置楼层】:小区中心,正对花园。 ③.【室内装修】:居家装修,精装全配,家具家电全送。 ④.【价格税费】:满五年 ⑤.【 产权】:产权人2人,在上海可随时签约, 1人,交房前可迁出。
-
业主心态问经纪人
这个业主是我的老客户。 已经看好了新的要买的房子,就等自己房子出售置换。
-
小区配套问经纪人
位置:小区地理位置佳,绿化率高,居民素质高 配套:有健身器材,小型篮球场,可供小区居民使用 车位:停车位充足,建有地上停车场和地下车库 保安:小区内24保安巡逻
-
服务介绍问经纪人
本人从事房地产多年,公司有大量好房源,欢迎进入我的店铺查看,欢迎随时电话咨询,相信我的专业,为您置业安家保驾护航。
周边配套
交通综合评分
查看全部超过上海48.6%的小区
-
地铁公交
10.0
-
城际交通
4.0
本月均价 87754元/m²
环比上月 持平
同比去年 下跌 5.82%
猜你喜欢
同小区其它房源
户型齐全,主打户型方正,明卫,明厨,主卧朝南一居
名门河滨花园户型主要有63平-70平的户型方正,明卫,明厨,主卧朝南的一居 、69平-114平的户型方正,明卫,明厨,双阳台的二居 、122平-138平的户型方正,明卫,明厨,双阳台,主卧朝南的三居 。
*获取完整户型报告,同时会有免费语音讲解服务
-
69810元/㎡
本月挂牌均价
-
持平
环比上月
买房加房产交流群,省钱不踩雷
3000+人正在热聊
- 免费咨询
- 专业服务
- 区域解读
- 户型分析

