此户型限量6套丨中心位置边套送大花园丨赠两百平地下室现房交付
-
9800万
总价
-
7室3厅6卫
户型
-
570.06㎡
建筑面积
买房加房产交流群,省钱不踩雷
3000+人正在热聊
-
单价
171912元/平米
- 挂牌价格解析
-
楼层
1层
- 咨询楼层
-
套内
569.06㎡
- 咨询套内使用面积
-
楼型
独栋
-
朝向
南
-
装修
简装修
-
年代
2023
-
发布
2025-06-27
-
地铁
距11号线(花桥-迪士尼)龙耀路站约489米
-
咨询总首付
首付约3121.2万
首付税费及佣金情况 -
深度测评
小区云锦东方三期别墅(徐汇-龙华)
-
更多
楼户比、楼层高度、交易历史、抵押信息
-
核验码
202510050164
房源描述(1)
-
核心卖点问经纪人
核心 【房源描述】:面积569平米,7房3厅6卫,价格还可以谈,户型正气 【利用空间】:此房户型正气,无拐角浪费,使用面积高。 1、小区环境:品质小区,经典花园式小区,环境优美,静谧,绿化程度高,住户素质高 2、周边配套:生活设施配套齐全 交通:12号线11号线龙华地铁站 11号线云锦路地铁站 商场:龙华会 西岸凤巢 云锦天地 绿地缤纷城 保利时光里商场等,可以满足一切生活需求 3、房屋详情:采光好,视野无遮挡,南北通透、户型方正,阳台朝向花园。 4、装修状况:房子是业主精心装修设计的,装修合理,保养很好。 5、房子位置:处于小区的理想位置,安静,保证每天都有充足的睡眠。
-
业主心态问经纪人
业主是我多年的老业主了,房屋现全权委托给我们出售,只要您房子喜欢,价格告诉我,我来帮您洽谈,房子满五年且家里 一套住宅, ,产权清晰,可以放心交易。
-
小区配套问经纪人
小区地理位置佳,绿化环境优越整洁,居民素质高,物业管理完善,适宜居住
-
服务介绍问经纪人
【服务介绍】: 【个人介绍】:我叫赖芬,2015年毕业,毕业以后一直从事金融房产行业,曾在某家做了差不多两年的新房,现在在徐汇滨江 翔飞地产做二手 新房 租赁 ,对房产专业知识非常了解。
-
税费分析房贷计算
关于本房的税费信息情况,请电话联系我,我将详细的为您讲解!
-
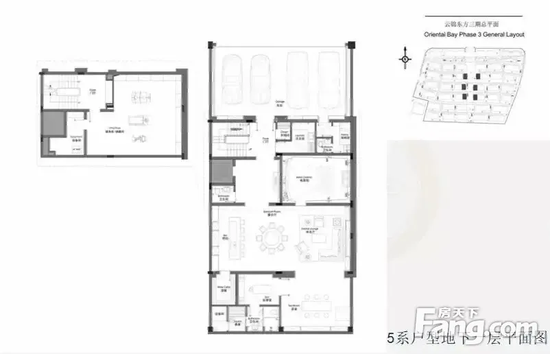
户型解读问经纪人
房屋拥有相对宽松的尺寸,布局通透,动静分离,设计豪华
周边配套
-
86617元/㎡
本月挂牌均价
-
持平
环比上月
买房加房产交流群,省钱不踩雷
3000+人正在热聊
- 免费咨询
- 专业服务
- 区域解读
- 户型分析


