静安内环内地铁两站人广+电梯高区全明两房+日照采光好
-
508万
总价
-
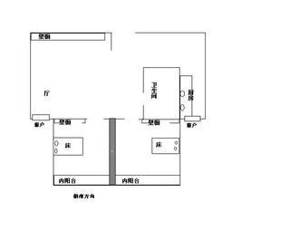
2室2厅1卫
户型
-
103.29㎡
建筑面积
买房加房产交流群,省钱不踩雷
3000+人正在热聊
-
单价
49182元/平米
- 挂牌价格解析
-
楼层
高层/24层
- 咨询楼层
-
套内
102.29㎡
- 咨询套内使用面积
-
楼型
砖楼
-
朝向
南
-
装修
精装修
-
年代
2000
-
发布
2026-04-24
-
地铁
距8号线西藏北路站约590米
-
咨询总首付
首付约152.5万
首付税费及佣金情况 -
深度测评
小区久欣公寓(静安-西藏北路)
-
更多
楼户比、楼层高度、交易历史、抵押信息
-
核验码
202308334314
房源描述(1)
-
核心卖点问经纪人
1、户型方正实用,公摊面积少,实用面积高,通风采光好,视野开阔。 2、性价比高,室内精装修。 3、卧室温馨舒适,搭配心怡。 4、周边配套齐全,交通便利,周边城市圈。 5、环境优越,舒适,小区绿化高。
-
业主心态问经纪人
房东置换,诚心出售,欢迎看房,随时恭候您的到来!
-
小区配套问经纪人
小区居民素质高,配套设施齐全,地理位置好,交通便利。
-
服务介绍问经纪人
我从事房产行业多年,积累了大量的专业知识,也得到了业主、客户的信赖和认可,为您买到合适的房子是我的服务宗旨。
-
税费分析房贷计算
产权干净,税费清晰,欢迎来电咨询该房屋详情,静候您的来电!
-
户型解读问经纪人
房屋户型方正,景观布局合理,设计实用,空间舒适,格局优越,采光通风良好
周边配套
交通综合评分
查看全部超过上海60.4%的小区
-
地铁公交
10.0
-
城际交通
4.0
本月均价 61660元/m²
环比上月 持平
同比去年 下跌 5.45%
猜你喜欢
同小区其它房源
户型齐全,主打户型方正,明厨,明卫,主卧朝南二居
久欣公寓户型主要有103平-106平的户型方正,明厨,明卫,主卧朝南的二居 、110平-133平的户型方正,明卫,明厨,主卧朝南的三居 。
*获取完整户型报告,同时会有免费语音讲解服务
买房加房产交流群,省钱不踩雷
3000+人正在热聊
- 免费咨询
- 专业服务
- 区域解读
- 户型分析

