嘉天汇公寓 232.7平4居 南北向精装修 着急出售,送车位
-
3800万
总价
-
4室2厅3卫
户型
-
232.7㎡
建筑面积
买房加房产交流群,省钱不踩雷
3000+人正在热聊
-
单价
163300元/平米
- 挂牌价格解析
-
楼层
底层/36层
- 咨询楼层
-
套内
230.7㎡
- 咨询套内使用面积
-
楼型
板楼
-
朝向
南北
-
装修
精装修
-
年代
2015
-
发布
2025-05-07
-
地铁
距2号线静安寺站约821米
-
咨询总首付
首付约1138.1万
首付税费及佣金情况 -
深度测评
小区嘉天汇公寓(静安-静安寺)
-
更多
楼户比、楼层高度、交易历史、抵押信息
-
核验码
202100802669
房源描述(1)
-
核心卖点问经纪人
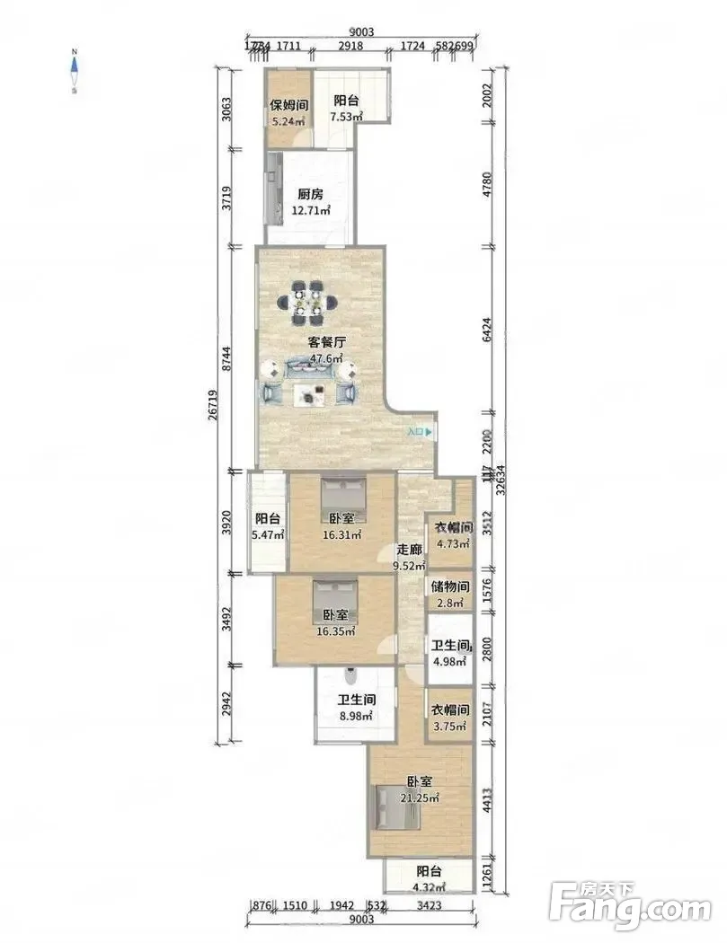
【房型介绍】4房2厅4卫3阳台1、本房南向20米面宽,三个房间及客厅朝南,动静离,私家电梯刷卡,安全性高,充体现了业主的尊贵感;2、南向自带双阳台,三个套房设计,整个房子仅一个没有窗户,其余均为明卫,良好的通风给业主整洁的环境;3、北向次卧为套房,可做儿童房,给一个舒适的健康环境。【房源面积】一层一户,得房率80%-85%,设计;理念好,不会感觉到浪费或者压抑。【采光布局】小区zhong心位置,采光不档,通风性好,周边绿化多,环境好。【装修详情】精装修,保养的好,上门实测满5年买进2488万有贷款约0万。
-
业主心态问经纪人
此房源业主诚心出售,只要你的价格在这个范围内都可以和业主坐在一起洽谈。
-
小区配套问经纪人
小区环境优雅,配套成熟,交通便利,居住舒适.
-
服务介绍问经纪人
您好,我是美凯龙爱家-客户经理-孔开拓,从业10余年。 1、宗旨:积极、乐观、主动、务实、勤奋、诚实、守信; 2、理念:想客户所想,急客户所急;一次委托 = 终身朋友; 3、态
-
税费分析房贷计算
产权干净,税费清晰,欢迎咨询该房屋详情,静候您的!
-
户型解读问经纪人
此房为南北通4房,房东诚意出售,看房方便!
周边配套
交通综合评分
查看全部超过上海67.8%的小区
-
地铁公交
10.0
-
驾车出行
7.0
-
城际交通
9.0
本月均价 168863元/m²
环比上月 持平
同比去年 下跌 22.51%
猜你喜欢
同小区其它房源
户型齐全,主打明卫,双阳台,双卧朝南三居
嘉天汇公寓户型主要有169平-232平的明卫,双阳台,双卧朝南的三居 、321平-321平的户型方正,明卫,双阳台,主卧朝南的五居 。
*获取完整户型报告,同时会有免费语音讲解服务
-
105015元/㎡
本月挂牌均价
-
持平
环比上月
买房加房产交流群,省钱不踩雷
3000+人正在热聊
- 免费咨询
- 专业服务
- 区域解读
- 户型分析

