阅唐精装洋房套三双卫,南北通透可看海,价格低采光好
-
115万
总价
-
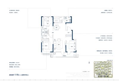
3室2厅
户型
-
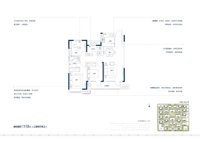
118.23㎡
建筑面积
买房加房产交流群,省钱不踩雷
3000+人正在热聊
加入群聊
-
单价
9727元/平米
- 挂牌价格解析
-
楼层
高楼层/11层
- 咨询楼层
-
套内
暂无数据
- 咨询套内使用面积
-
朝向
南北
-
装修
精装
-
供暖
暂无数据
-
发布
2025-11-24
-
地铁
距西海岸快线(13号线)盛海路(世博城)站约907米
-
咨询总首付
首付约45.1万
首付税费及佣金情况 -
深度测评
小区世博城·逸海(黄岛-海洋活力区)
-
更多
楼户比、楼层高度、交易历史、抵押信息
周边配套
地址:三沙路东,盛海路北
本月均价 9669元/m²
环比上月 下跌 1.32%
同比去年 上涨 1.09%
猜你喜欢
同小区其它房源
买房加房产交流群,省钱不踩雷
3000+人正在热聊
加入群聊
免责声明:房源信息由网站用户提供,其真实性、合法性由信息提供者负责,最终以政府部门登记备案为准。本网站不声明或保证内容之正确性和可靠性,购买该房屋时,请谨慎核查。入学情况仅凭历史经验总结,在此不承诺升学事宜。请您在签订合同之前,切勿支付任何形式的费用,以免上当受骗。



