青中旁 下叠中间户带车位院子地下室 诚心出售
-
330万
总价
-
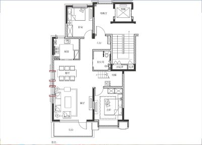
5室2厅
户型
-
201.83㎡
建筑面积
买房加房产交流群,省钱不踩雷
3000+人正在热聊
加入群聊
-
单价
16351元/平米
- 挂牌价格解析
-
楼层
低楼层/4层
- 咨询楼层
-
套内
169.77㎡
- 咨询套内使用面积
-
朝向
南北
-
装修
毛坯
-
供暖
暂无数据
-
发布
2024-06-17
-
地铁
暂无数据
-
咨询总首付
首付约144.2万
首付税费及佣金情况 -
深度测评
小区招商雍华府(城阳-高新区)
-
更多
楼户比、楼层高度、交易历史、抵押信息
周边配套
地址:同顺路17号
本月均价 11001元/m²
环比上月 下跌 0.07%
同比去年 下跌 15.25%
猜你喜欢
同小区其它房源
户型齐全,主打户型方正,客厅朝南三居
招商雍华府户型主要有98平-125平的户型方正,客厅朝南的三居 、185平-200平的南北通透,全明格局的五居 。
*获取完整户型报告,同时会有免费语音讲解服务
买房加房产交流群,省钱不踩雷
3000+人正在热聊
加入群聊
免责声明:房源信息由网站用户提供,其真实性、合法性由信息提供者负责,最终以政府部门登记备案为准。本网站不声明或保证内容之正确性和可靠性,购买该房屋时,请谨慎核查。入学情况仅凭历史经验总结,在此不承诺升学事宜。请您在签订合同之前,切勿支付任何形式的费用,以免上当受骗。



