东方韵创世豪宅 品质享受 超一线海景 奢华装修 拎包即可入住
-
785万
总价
-
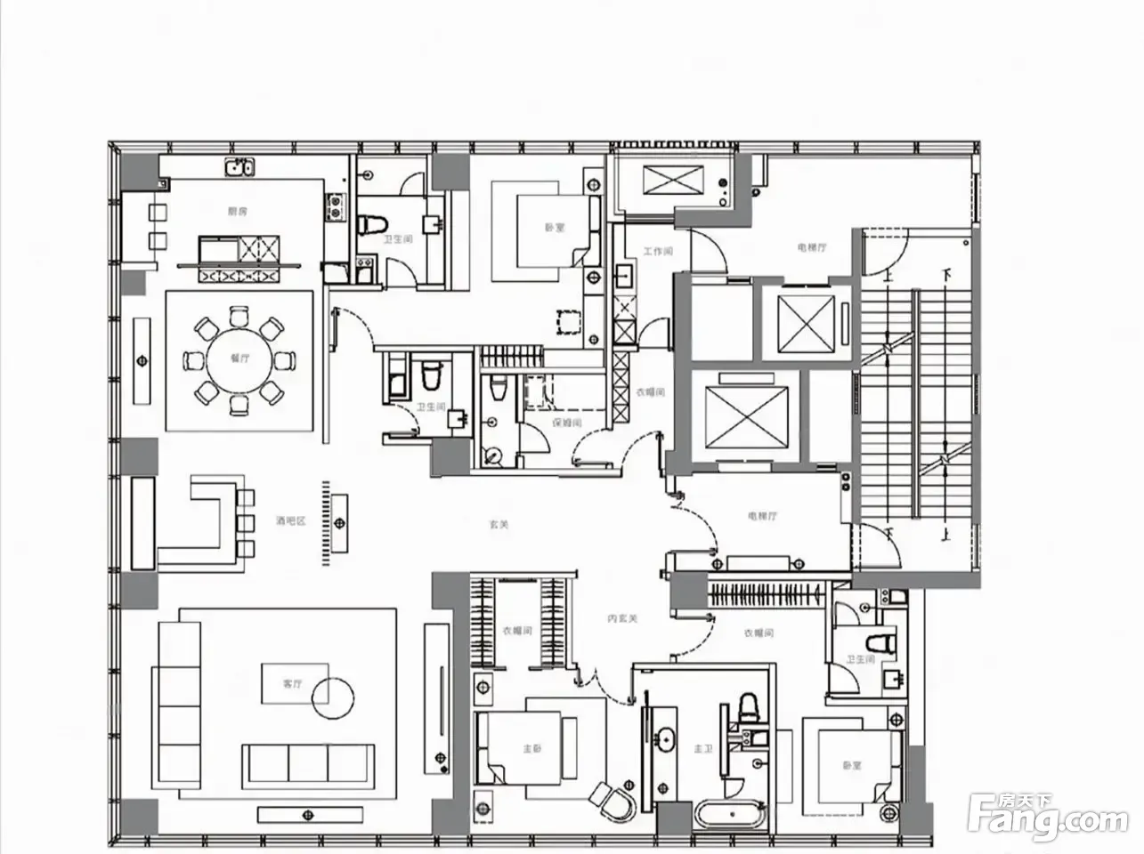
4室2厅4卫
户型
-
393㎡
建筑面积
买房加房产交流群,省钱不踩雷
3000+人正在热聊
加入群聊
-
单价
19975元/平米
- 挂牌价格解析
-
楼层
高层/23层
- 咨询楼层
-
套内
392㎡
- 咨询套内使用面积
-
朝向
南北
-
装修
精装修
-
年代
2023
-
发布
2026-01-18
-
地铁
距西海岸快线(13号线)两河站约910米
-
咨询总首付
首付约342.3万
首付税费及佣金情况 -
深度测评
小区隆和·东方韵府(黄岛-隐珠)
-
更多
楼户比、楼层高度、交易历史、抵押信息
房源描述(1)
周边配套
地址:黄岛区滨海大道2866号
交通综合评分
查看全部3.2
“一般”
超过青岛0.0%的小区
-
地铁公交
8.0
本月均价 23117元/m²
环比上月 上涨 3.67%
同比去年 上涨 14.83%
户型齐全,主打南北通透,全明格局三居
隆和·东方韵府户型主要有339平-394平的南北通透,全明格局的三居 、408平-468平的南北通透,全明格局的四居 。
*获取完整户型报告,同时会有免费语音讲解服务
买房加房产交流群,省钱不踩雷
3000+人正在热聊
加入群聊
- 免费咨询
- 专业服务
- 区域解读
- 户型分析
免责声明:房源信息由网站用户提供,其真实性、合法性由信息提供者负责,最终以政府部门登记备案为准。本网站不声明或保证内容之正确性和可靠性,购买该房屋时,请谨慎核查。入学情况仅凭历史经验总结,在此不承诺升学事宜。请您在签订合同之前,切勿支付任何形式的费用,以免上当受骗。


