山水名园二期 5室4厅 140.33平
-
498万
总价
-
5室4厅1卫
户型
-
140.33㎡
建筑面积
买房加房产交流群,省钱不踩雷
3000+人正在热聊
-
单价
35488元/平米
- 挂牌价格解析
-
楼层
中层/5层
- 咨询楼层
-
套内
139.33㎡
- 咨询套内使用面积
-
楼型
板楼
-
朝向
南北
-
装修
精装修
-
年代
2009
-
发布
2026-01-11
-
咨询总首付
首付约196.2万
首付税费及佣金情况 -
深度测评
小区山水名园二期(崂山-石老人)
-
更多
楼户比、楼层高度、交易历史、抵押信息
房源描述(1)
-
核心卖点问经纪人
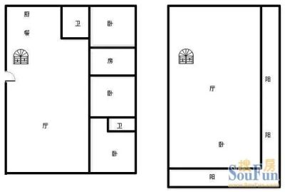
核心把东头位置,地势高,带24平观山看海景大平台,视野开阔 小区介绍山水名园二期是2008年的房子。由青岛本地开发商源泰置业建设,小区总共31栋楼,由19栋多层洋房、6栋高层和6栋别墅组成。小区的物业是青岛恒福物业,多层每平1.8元、高层每平1.7元+0.4元。小区是集中供暖,房子都是开发商统一装修并做成地暖。 户型介绍房子140平*22层的格局,共计5个卧室,4个客厅,适合三胎家庭或两代人居住都可以,一层是平层三室格局,双南向卧室(带飘窗),一个北向卧室,南向4.2米开间客厅,还有一个独立衣帽间。二层是阁楼,利用率达90%,业主把阁楼二次装修,南向带24平观海平0 装修描述业主买的一手房,从买入到现在住了不到半年时间,不住的期间经常过来开窗通风、打扫卫生。而且业主重新换的壁纸、阁楼二次装修了,装修维护保养的很好,基本是可以拎包入住。 交通出行小区门口的马路上随便停车不贴条,小区邻香港东路8车道,该路段不会堵车,公交站牌是石老人西站,638.629.301.304.104.230.380.612等多辆公交车经过,距离2号地铁线石老人海水浴场站11号地铁线苗岭路站只有三站公交车的距离 权属抵押产权清晰、无抵押无查封、随时可以过户交易,房子满五年不,首套房交3.5%税费、二套房缴纳4%税费
-
业主心态问经纪人
房东置换,诚心出售,可以再谈,欢迎看房,随时恭候。
-
小区配套问经纪人
小区地理位置佳,绿化环境优越整洁,居民素质高,物业管理完善,适宜居住
-
服务介绍问经纪人
本人做房产多年,一直本着的房产知识,为您,我会在短的时间内帮您买好满意的房子,不让您错失任何好房子,更不让您每天为买房的事烦心,欢迎随时拨打我电话。
-
税费分析房贷计算
关于本房的税费信息情况,请电话联系我,我将详细的为您讲解!
-
户型解读问经纪人
房屋拥有相对宽松的尺寸,布局通透,动静分离,设计豪华
周边配套
交通综合评分
查看全部超过青岛38.7%的小区
-
地铁公交
9.0
-
驾车出行
10.0
本月均价 29792元/m²
环比上月 下跌 1.78%
同比去年 下跌 13.65%
猜你喜欢
同小区其它房源
户型齐全,主打户型方正,明厨,明卫,双阳台三居
山水名园二期户型主要有130平-170平的户型方正,明厨,明卫,双阳台的三居 、107平-133平的户型方正,双阳台的二居 、142平-172平的户型方正,明厨,明卫,双卧朝南,主卧朝南的四居 。
*获取完整户型报告,同时会有免费语音讲解服务
-
43183元/㎡
本月挂牌均价
-
1.63%
环比上月
买房加房产交流群,省钱不踩雷
3000+人正在热聊
- 免费咨询
- 专业服务
- 区域解读
- 户型分析

