青岛的汤臣一品!浮山湾精装海景豪宅 千万级轻松入驻岛城地标!
-
915万
总价
-
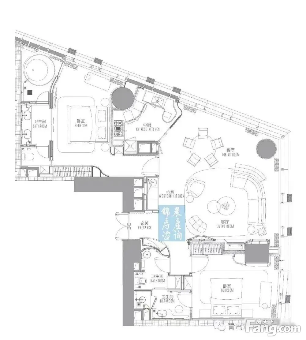
2室2厅2卫
户型
-
152㎡
建筑面积
买房加房产交流群,省钱不踩雷
3000+人正在热聊
-
单价
60197元/平米
- 挂牌价格解析
-
楼层
中层/61层
- 咨询楼层
-
套内
暂无数据
- 咨询套内使用面积
-
楼型
板楼
-
朝向
南北
-
装修
精装修
-
年代
2020
-
发布
2026-01-30
-
地铁
距3号线延安三路站约602米
-
咨询总首付
首付约398.8万
首付税费及佣金情况 -
深度测评
小区海天公馆(市南-湛山)
-
更多
楼户比、楼层高度、交易历史、抵押信息
房源描述(1)
-
核心卖点问经纪人
全球豪宅定制,打造青岛塔尖户户海幕平层。 市南区沿海 70年产权住宅... 城市地标 综合体 青岛地标 定位豪宅 综合体配套齐全 五 物业 全球33家团队打造 全球 七大室内设计师 客户群体纯粹 塔尖圈层 圈层层峰人士资产配置 面积150-400平 精装海幕现房,总价0-5000W起 建面约150-400㎡海居封面丨建面约600/1200㎡天际孤品 顶复售价1.1-2.9Y 全球现房发售中
-
业主心态问经纪人
【1】根据您的购房需要,免费提供购房方案,为您节省时间;【2】直接签约无需其他费用,并享受团购政策;【3】办理后续贷款手续及疑难杂症。
-
小区配套问经纪人
位置:小区地理位置佳,绿化率高,居民素质高配套:有健身器材,小型篮球场,可供小区居民使用 车位:停车位充足,建有地上停车场和地下车库 保安:小区内24保安巡逻
-
服务介绍问经纪人
本人从事房地产多年,公司有大量好房源,欢迎进入我的店铺查看,欢迎随时电话咨询,相信我的,为您置业安家保驾护航。
-
税费分析房贷计算
新房: 房税费首套房契税1至3个点。物业费2元到3元一平方。 购买新房主要税费: 契税:90平以内:1% ;90-124 平收1.5%;124平以上收2%(交房后地税收取) 注:以上收费仅供参考
周边配套
交通综合评分
查看全部超过青岛0.0%的小区
-
地铁公交
10.0
本月均价 92141元/m²
环比上月 下跌 0.04%
同比去年 上涨 0.93%
猜你喜欢
同小区其它房源
-
44497元/㎡
本月挂牌均价
-
0.12%
环比上月
买房加房产交流群,省钱不踩雷
3000+人正在热聊
- 免费咨询
- 专业服务
- 区域解读
- 户型分析

