庄园独栋别墅 0平花园 产证692平 独立大院
-
6700万
总价
-
8室2厅7卫
户型
-
692㎡
建筑面积
买房加房产交流群,省钱不踩雷
3000+人正在热聊
-
单价
96821元/平米
- 挂牌价格解析
-
楼层
底层/3层
- 咨询楼层
-
套内
691㎡
- 咨询套内使用面积
-
朝向
南北
-
装修
毛坯
-
年代
2004
-
发布
2024-10-20
-
咨询总首付
首付约2916.9万
首付税费及佣金情况 -
深度测评
小区文园花园(崂山-石老人)
-
更多
楼户比、楼层高度、交易历史、抵押信息
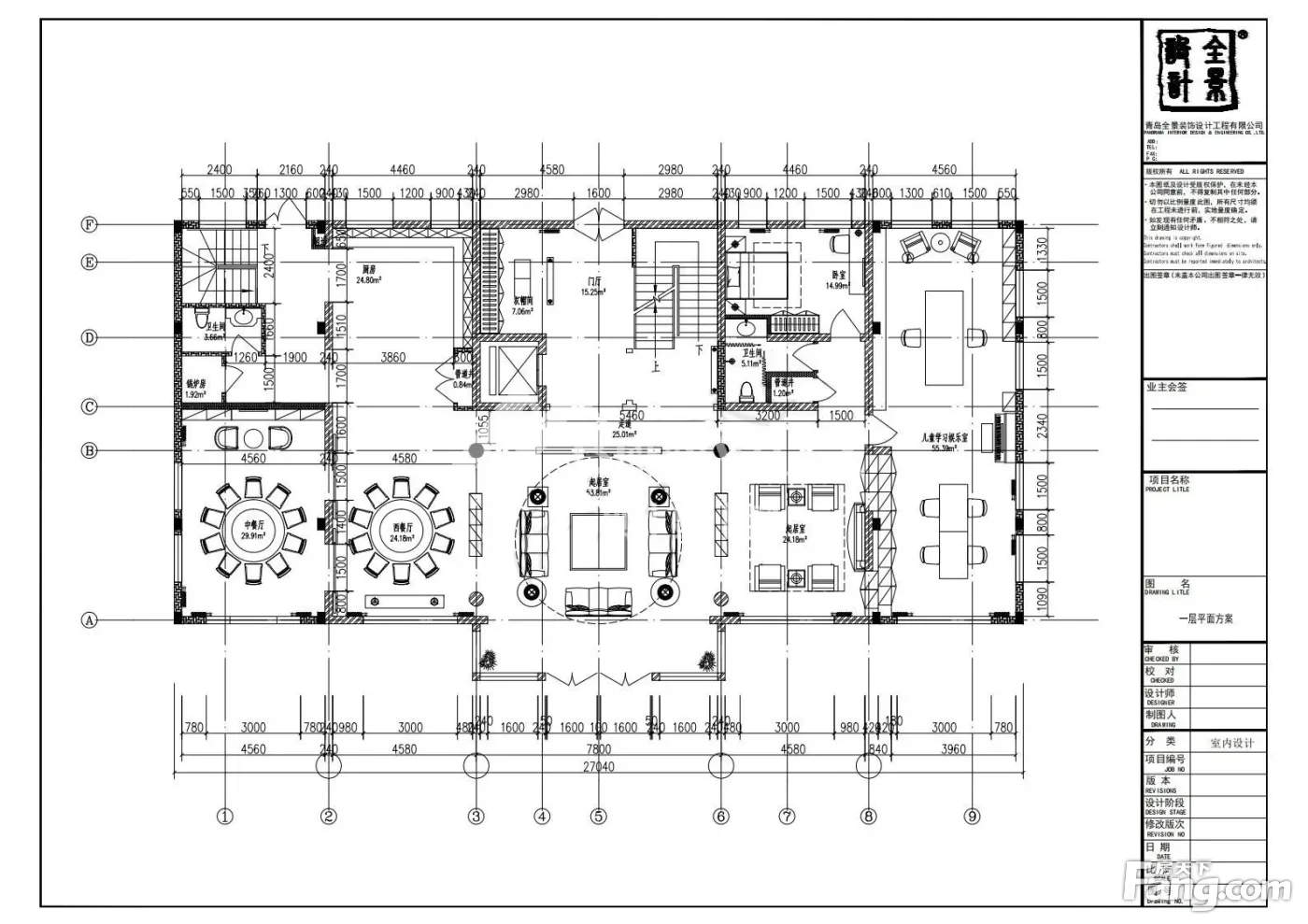
房源描述(1)
-
核心卖点问经纪人
所售房源真实有效,房源图片现场实拍。 此别墅 本人已多次看过,了解房东的卖房原因,多年的老客户买卖过 多套房产,产权已经查过 没有抵押 没有查封的 产权纠纷问题。 1.独栋别墅,目前是毛坯状态,占地面积2.5亩,产证692平米,实测院子1.6亩约1平方米左右 2.房子北向入户,北面有个独立车库 可停两个车,进门右侧是保姆间,总共12个房间 ,7个卫生间,南向挑空大客厅,西侧是一个中西式厨房,南向加西侧院子,并且西侧院子也已单独开门 3.此房有钥匙,提前预约看房非常方便,欢迎随时来电咨询。
-
业主心态问经纪人
业主心态 我承诺:发布房源真实在售,真实可看,不弄虚作假,随时联系,随时可看 我做到:
-
小区配套问经纪人
小区地理位置佳,绿化环境优越整洁,居民素质高,物业管理完善,适宜居住
-
服务介绍问经纪人
多年来一直精耕浮山前雕塑园·麦岛石老人·市南’等沿海一线,熟悉周边的配套小区和房源,我会用我的知识为您的购房之旅保驾护航,提高看房效率,为您节约宝贵的时间,更多房源欢迎随时来电咨询!!!
-
税费分析房贷计算
关于本房的税费信息情况,请电话联系我,我将详细的为您讲解!
-
户型解读问经纪人
房屋拥有相对宽松的尺寸,布局通透,动静分离,设计豪华
周边配套
交通综合评分
查看全部超过青岛24.0%的小区
-
地铁公交
9.0
-
驾车出行
10.0
本月均价 34518元/m²
环比上月 下跌 2.81%
同比去年 下跌 4.93%
猜你喜欢
同小区其它房源
买房加房产交流群,省钱不踩雷
3000+人正在热聊
- 免费咨询
- 专业服务
- 区域解读
- 户型分析

