工行宿舍(仙葫)3房2厅中装75万
-
65万
总价
-
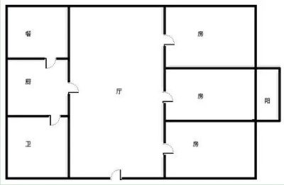
3室2厅2卫
户型
-
127.48㎡
建筑面积
买房加房产交流群,省钱不踩雷
3000+人正在热聊
加入群聊
-
单价
5099元/平米
- 挂牌价格解析
-
楼层
中楼层/6层
- 咨询楼层
-
套内
暂无数据
- 咨询套内使用面积
-
朝向
南北
-
装修
中装修
-
年代
2013
-
发布
2026-02-03
-
地铁
距3号线东葛路站约1084米
-
深度测评
小区工行宿舍(青秀-东葛片区)
-
更多
楼户比、楼层高度、交易历史、抵押信息
周边配套
地址:竹塘路16号(米兰大厦旁)
交通综合评分
查看全部5.2
“一般”
超过南宁82.8%的小区
-
地铁公交
10.0
-
城际交通
4.0
本月均价 11961元/m²
环比上月 下跌 0.13%
同比去年 下跌 9.85%
猜你喜欢
同小区其它房源
-
10445元/㎡
本月挂牌均价
-
0.05%
环比上月
买房加房产交流群,省钱不踩雷
3000+人正在热聊
加入群聊
免责声明:房源信息由网站用户提供,其真实性、合法性由信息提供者负责,最终以政府部门登记备案为准。本网站不声明或保证内容之正确性和可靠性,购买该房屋时,请谨慎核查。入学情况仅凭历史经验总结,在此不承诺升学事宜。请您在签订合同之前,切勿支付任何形式的费用,以免上当受骗。



