地铁口,一梯一户大平层,总高6层带电梯,通透户型
-
133万
总价
-
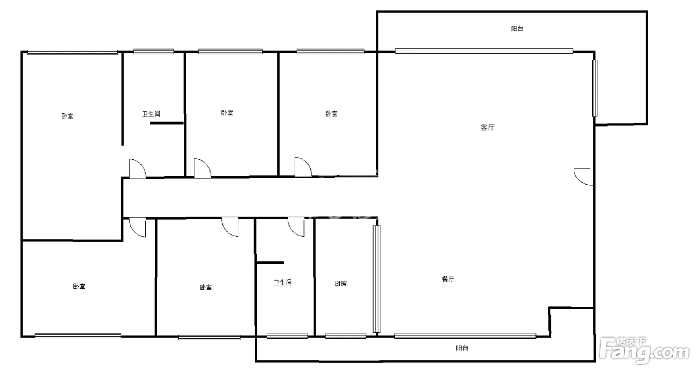
6室2厅2卫
户型
-
211.39㎡
建筑面积
买房加房产交流群,省钱不踩雷
3000+人正在热聊
加入群聊
-
单价
6292元/平米
- 挂牌价格解析
-
楼层
低楼层/6层
- 咨询楼层
-
套内
175.41㎡
- 咨询套内使用面积
-
楼型
板楼
-
朝向
南北
-
装修
其他
-
供暖
暂无数据
-
年代
2014
-
发布
2025-09-06
-
地铁
距4号线那洪立交约647米
-
深度测评
小区南宁奥园(江南-国家经济开发区)
-
更多
楼户比、楼层高度、交易历史、抵押信息
周边配套
地址:那洪大道39号(壮锦大道与那洪大道交汇处、八桂绿城对面)
交通综合评分
查看全部7.6
“较好”
超过南宁45.3%的小区
-
地铁公交
10.0
-
驾车出行
8.0
-
城际交通
4.0
本月均价 5130元/m²
环比上月 下跌 1.23%
同比去年 下跌 7.9%
猜你喜欢
同小区其它房源
户型齐全,主打户型方正,明厨,明卫,双阳台,双卧朝南,主卧朝南三居
南宁奥园户型主要有96平-168平的户型方正,明厨,明卫,双阳台,双卧朝南,主卧朝南的三居 、75平-192平的户型方正,明卫,明厨,双阳台,主卧朝南的二居 、138平-227平的户型方正,明厨,客厅朝南,双阳台的四居 。
*获取完整户型报告,同时会有免费语音讲解服务
-
7778元/㎡
本月挂牌均价
-
0.53%
环比上月
买房加房产交流群,省钱不踩雷
3000+人正在热聊
加入群聊
免责声明:房源信息由网站用户提供,其真实性、合法性由信息提供者负责,最终以政府部门登记备案为准。本网站不声明或保证内容之正确性和可靠性,购买该房屋时,请谨慎核查。入学情况仅凭历史经验总结,在此不承诺升学事宜。请您在签订合同之前,切勿支付任何形式的费用,以免上当受骗。



