绿地精装4+1房未住过,南北对流,全新
-
266万
总价
-
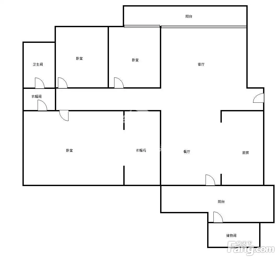
4室2厅
户型
-
143.8㎡
建筑面积
买房加房产交流群,省钱不踩雷
3000+人正在热聊
加入群聊
-
单价
18498元/平米
- 挂牌价格解析
-
楼层
低楼层/30层
- 咨询楼层
-
套内
暂无数据
- 咨询套内使用面积
-
楼型
塔楼
-
朝向
东南
-
装修
精装
-
供暖
暂无数据
-
发布
2023-08-08
-
地铁
距3号线滨湖路站约787米
-
深度测评
小区绿地中央广场(青秀-东葛片区)
-
更多
楼户比、楼层高度、交易历史、抵押信息
周边配套
地址:东葛路161号( 青秀万达对面 )
交通综合评分
查看全部7.0
“较好”
超过南宁49.8%的小区
-
地铁公交
10.0
-
驾车出行
10.0
本月均价 15103元/m²
环比上月 下跌 0.56%
同比去年 下跌 6.65%
猜你喜欢
同小区其它房源
户型齐全,主打户型方正,采光充足一居
绿地中央广场户型主要有38平-53平的户型方正,采光充足的一居 、105平-127平的户型方正,双阳台的三居 、140平-228平的主卧套间,双阳台的四居 。
*获取完整户型报告,同时会有免费语音讲解服务
-
10445元/㎡
本月挂牌均价
-
0.05%
环比上月
买房加房产交流群,省钱不踩雷
3000+人正在热聊
加入群聊
免责声明:房源信息由网站用户提供,其真实性、合法性由信息提供者负责,最终以政府部门登记备案为准。本网站不声明或保证内容之正确性和可靠性,购买该房屋时,请谨慎核查。入学情况仅凭历史经验总结,在此不承诺升学事宜。请您在签订合同之前,切勿支付任何形式的费用,以免上当受骗。



