急售 价格好谈 正南 广源鲁班壹号 2室2厅 精装修
-
60万
总价
-
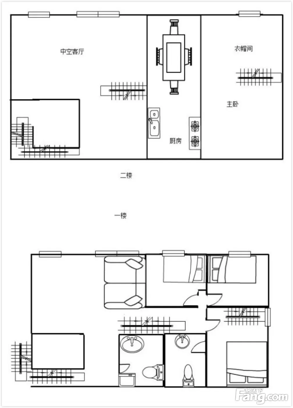
2室2厅2卫
户型
-
50.67㎡
建筑面积
买房加房产交流群,省钱不踩雷
3000+人正在热聊
-
单价
11841元/平米
- 挂牌价格解析
-
楼层
高层/22层
- 咨询楼层
-
套内
50㎡
- 咨询套内使用面积
-
楼型
板楼
-
朝向
南
-
装修
精装修
-
年代
2017
-
发布
2026-04-08
-
地铁
距1号线鲁班路站约114米
-
深度测评
小区广源鲁班壹号(西乡塘-大学片区)
-
更多
楼户比、楼层高度、交易历史、抵押信息
房源描述(1)
-
核心卖点问经纪人
相信为您推荐的这套房子您一定会满意,赶快行动吧,先到先得! 房屋年代∶2017年,房屋面积∶50.67平方米,朝向∶正南 1. 小区配备良好物业管理,让你享受宾至如归的服务; 2. 小区人文素质高,是您的居家的品质选择; 3. 小区环境安静舒适,让您拥有高品质的生活环境; 4. 小区绿化高,绿树成荫鸟语花香让您随时呼吸到新鲜空气。
周边配套
交通综合评分
查看全部超过南宁75.9%的小区
-
地铁公交
10.0
-
城际交通
4.0
本月均价 10882元/m²
环比上月 上涨 4.34%
同比去年 下跌 0.39%
猜你喜欢
同小区其它房源
户型齐全,主打户型方正三居
广源鲁班壹号户型主要有42平-50平的户型方正的三居 、40平-51平的户型方正的二居 、96平-120平的主卧带卫,观景飘窗的四居 。
*获取完整户型报告,同时会有免费语音讲解服务
-
7315元/㎡
本月挂牌均价
-
0.19%
环比上月
买房加房产交流群,省钱不踩雷
3000+人正在热聊
- 免费咨询
- 专业服务
- 区域解读
- 户型分析

