洪都大院五区 户型方正,采光好 装修好,环镜优美 视野好,诚心出售
-
36万
总价
-
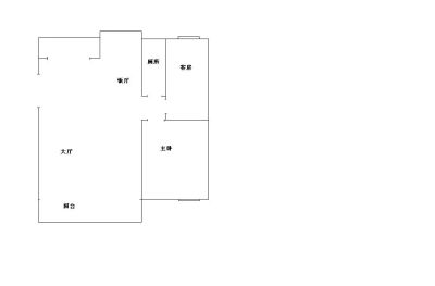
2室1厅1卫
户型
-
60㎡
建筑面积
买房加房产交流群,省钱不踩雷
3000+人正在热聊
加入群聊
-
单价
6000元/平米
- 挂牌价格解析
-
楼层
低楼层/7层
- 咨询楼层
-
套内
暂无数据
- 咨询套内使用面积
-
楼型
板楼
-
朝向
南北
-
装修
精装
-
年代
1997
-
发布
2026-01-16
-
咨询总首付
首付约16.2万
首付税费及佣金情况 -
深度测评
小区洪都五区(青云谱-洪都)
-
更多
楼户比、楼层高度、交易历史、抵押信息
周边配套
地址:洪都南飞宿舍
交通综合评分
查看全部3.2
“一般”
超过南昌74.9%的小区
-
地铁公交
8.0
本月均价 6064元/m²
环比上月 下跌 9.51%
同比去年 下跌 20.87%
猜你喜欢
同小区其它房源
-
8220元/㎡
本月挂牌均价
-
1.45%
环比上月
买房加房产交流群,省钱不踩雷
3000+人正在热聊
加入群聊
免责声明:房源信息由网站用户提供,其真实性、合法性由信息提供者负责,最终以政府部门登记备案为准。本网站不声明或保证内容之正确性和可靠性,购买该房屋时,请谨慎核查。入学情况仅凭历史经验总结,在此不承诺升学事宜。请您在签订合同之前,切勿支付任何形式的费用,以免上当受骗。



