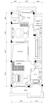
联排别墅,中间户,精装修,可以拎包入住。
-
648万
总价
-
6室2厅
户型
-
229.7㎡
建筑面积
买房加房产交流群,省钱不踩雷
3000+人正在热聊
加入群聊
-
单价
28211元/平米
- 挂牌价格解析
-
楼层
低楼层/3层
- 咨询楼层
-
套内
暂无数据
- 咨询套内使用面积
-
楼型
塔楼
-
朝向
南北
-
装修
精装
-
供暖
暂无数据
-
发布
2025-06-29
-
地铁
距4号线丁家洲站约869米
-
咨询总首付
首付约282.4万
首付税费及佣金情况 -
深度测评
小区正荣御园(西湖-朝阳新城)
-
更多
楼户比、楼层高度、交易历史、抵押信息
周边配套
地址:朝阳新区云飞路以北,彭泽路以西
交通综合评分
查看全部3.6
“一般”
超过南昌4.1%的小区
-
地铁公交
9.0
本月均价 13143元/m²
环比上月 下跌 1.56%
同比去年 下跌 19.47%
猜你喜欢
同小区其它房源
-
14340元/㎡
本月挂牌均价
-
0.55%
环比上月
买房加房产交流群,省钱不踩雷
3000+人正在热聊
加入群聊
免责声明:房源信息由网站用户提供,其真实性、合法性由信息提供者负责,最终以政府部门登记备案为准。本网站不声明或保证内容之正确性和可靠性,购买该房屋时,请谨慎核查。入学情况仅凭历史经验总结,在此不承诺升学事宜。请您在签订合同之前,切勿支付任何形式的费用,以免上当受骗。



