急售 红谷滩旁低总价联排别墅 户型好使用面积大 高性价比莱电
-
359万
总价
-
5室3厅3卫
户型
-
215㎡
建筑面积
买房加房产交流群,省钱不踩雷
3000+人正在热聊
-
单价
16698元/平米
- 挂牌价格解析
-
楼层
4层
- 咨询楼层
-
套内
暂无数据
- 咨询套内使用面积
-
楼型
独栋
-
朝向
东
-
装修
毛坯
-
年代
2012
-
发布
2025-11-22
-
地铁
暂无数据
-
咨询总首付
首付约156.5万
首付税费及佣金情况 -
深度测评
小区众森红谷一品别墅(新建-长堎)
-
更多
楼户比、楼层高度、交易历史、抵押信息
房源描述(1)
-
核心卖点问经纪人
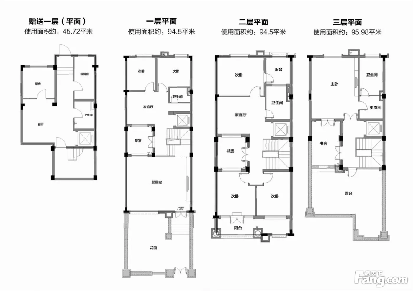
【楼盘】:众森一品联排中间户,房子花园30平方左右 总共4层,独门独户,带车库,产证面积215平方,实际利用面积350平方以上,已经拓展好了面积,产权清晰,随时可以交易,客厅挑高3.6米,总房间5-6个,卫生间4个,四代同堂完全没压力,车子可停3部车,私密性高,由于是前排位置,风景阳光很好。 【物业状况】:众森开发商自己的物业,物业费3元/平。 【内部环境】:绿化率高达38%,小区 ,游泳池 儿童娱乐设施,出后门就可以买菜。 【娱乐】:小区后门就是黄家湖公园,小区门口就是马兰圩湿地公园,您可以天天闻到花香的味道 , 【交通】:门口就有公交车站,离地铁1号线卫东站1500米距离。
-
业主心态问经纪人
1,业主缺钱诚心出售,满两年可交易 2,业主很诚心,价格还可以商量,钥匙在手,看房方便 3,首付没什么要求,走正常流程就行。 4,房源多多,为你寻找合适房源,欢迎咨询。
-
小区配套问经纪人
位置:小区地理位置佳,绿化率高,居民素质高 配套:有健身器材,小型篮球场,可供小区居民使用 车位:停车位充足,建有地上停车场和地下车库 保安:小区内24保安巡逻
-
服务介绍问经纪人
本人从事房产行业多年,具有丰富的从业经验,一直秉着客户至上,给客户节约时间,迅速的找到合适的房子,不让客户多花冤枉钱,用心服务好每一位信任我的客户,熟悉小区各种户型,了解小区周围配套及发展。欢迎咨询。
-
税费分析房贷计算
具体问题 欢迎 来电咨询
周边配套
交通综合评分
查看全部超过南昌1.3%的小区
-
地铁公交
9.0
-
8117元/㎡
本月挂牌均价
-
0.59%
环比上月
买房加房产交流群,省钱不踩雷
3000+人正在热聊
- 免费咨询
- 专业服务
- 区域解读
- 户型分析


