8号线地铁口,毛坯边户大四房,南北双阳台,好楼层
-
109万
总价
-
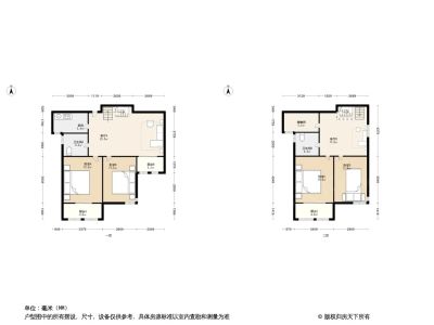
4室2厅
户型
-
129.63㎡
建筑面积
买房加房产交流群,省钱不踩雷
3000+人正在热聊
加入群聊
-
单价
8409元/平米
- 挂牌价格解析
-
楼层
中楼层/22层
- 咨询楼层
-
套内
106.61㎡
- 咨询套内使用面积
-
楼型
板楼
-
朝向
南
-
装修
其他
-
供暖
暂无数据
-
发布
2024-10-04
-
地铁
距8号线金梅路站约348米
-
咨询总首付
首付约28.5万
首付税费及佣金情况 -
深度测评
小区润地星城(北城区-北城新区)
-
更多
楼户比、楼层高度、交易历史、抵押信息
周边配套
地址:蒙城北路交金梅路西北角
交通综合评分
查看全部4.7
“一般”
超过合肥38.3%的小区
-
地铁公交
5.0
-
驾车出行
9.0
本月均价 7860元/m²
环比上月 上涨 0.49%
同比去年 下跌 6.6%
猜你喜欢
同小区其它房源
户型齐全,主打户型方正,明卫,明厨,双阳台,双卧朝南,主卧朝南三居
润地星城户型主要有52平-165平的户型方正,明卫,明厨,双阳台,双卧朝南,主卧朝南的三居 、62平-93平的户型方正,明厨,明卫,主卧朝南的二居 、111平-196平的户型方正,明厨,明卫,客厅朝南,全明格局,主卧朝南的四居 。
*获取完整户型报告,同时会有免费语音讲解服务
买房加房产交流群,省钱不踩雷
3000+人正在热聊
加入群聊
免责声明:房源信息由网站用户提供,其真实性、合法性由信息提供者负责,最终以政府部门登记备案为准。本网站不声明或保证内容之正确性和可靠性,购买该房屋时,请谨慎核查。入学情况仅凭历史经验总结,在此不承诺升学事宜。请您在签订合同之前,切勿支付任何形式的费用,以免上当受骗。



