大院管理,近地铁,加装电梯南向三房,通风采光好
-
390万
总价
-
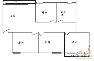
3室1厅
户型
-
69.74㎡
建筑面积
买房加房产交流群,省钱不踩雷
3000+人正在热聊
加入群聊
-
单价
55922元/平米
- 挂牌价格解析
-
楼层
中楼层/7层
- 咨询楼层
-
套内
63.01㎡
- 咨询套内使用面积
-
楼型
塔楼
-
朝向
南北
-
装修
其他
-
供暖
暂无数据
-
发布
2025-06-29
-
地铁
距5号线区庄站约242米
-
咨询总首付
首付约83.9万
首付税费及佣金情况 -
深度测评
小区广工大院(越秀-环市东)
-
更多
楼户比、楼层高度、交易历史、抵押信息
周边配套
地址:环市东路犀牛北街
交通综合评分
查看全部8.3
“较好”
超过广州76.9%的小区
-
地铁公交
10.0
-
驾车出行
10.0
-
城际交通
4.5
本月均价 41747元/m²
环比上月 下跌 0.36%
同比去年 下跌 10.68%
猜你喜欢
同小区其它房源
户型齐全,主打户型方正,明卫,明厨,客厅朝南,主卧朝南二居
广工大院户型主要有42平-68平的户型方正,明卫,明厨,客厅朝南,主卧朝南的二居 。
*获取完整户型报告,同时会有免费语音讲解服务
-
43291元/㎡
本月挂牌均价
-
0.22%
环比上月
买房加房产交流群,省钱不踩雷
3000+人正在热聊
加入群聊
免责声明:房源信息由网站用户提供,其真实性、合法性由信息提供者负责,最终以政府部门登记备案为准。本网站不声明或保证内容之正确性和可靠性,购买该房屋时,请谨慎核查。入学情况仅凭历史经验总结,在此不承诺升学事宜。请您在签订合同之前,切勿支付任何形式的费用,以免上当受骗。



