港澳台不限 番禺市桥 中空3房,旺租4000 来电看房方便
-
20万
总价
-
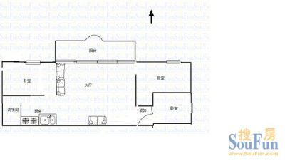
3室2厅2卫
户型
-
25㎡
建筑面积
买房加房产交流群,省钱不踩雷
3000+人正在热聊
-
单价
8000元/平米
- 挂牌价格解析
-
楼层
低层/30层
- 咨询楼层
-
套内
24㎡
- 咨询套内使用面积
-
楼型
板楼
-
朝向
北
-
装修
简装修
-
年代
2021
-
发布
2026-04-10
-
咨询总首付
首付约4.4万
首付税费及佣金情况 -
深度测评
小区南堤西路小区(番禺-市桥南)
-
更多
楼户比、楼层高度、交易历史、抵押信息
房源描述(1)
-
核心卖点问经纪人
1、小区环境:经典花园式小区,环境优美,静谧,绿化程度高,适合。 2、周边配套:生活设施配套齐全,商场、超市、餐厅、饮品店不一而足。 3、房屋详情:采光好,视野无遮挡,南北通透、户型方正,阳台朝向花园。 4、装修状况:房子是业主精心装修设计的,装修合理,保养很好。 5、房子位置:处于小区的理想位置,的安静,保证每天都有充足的睡眠。
-
业主心态问经纪人
房东置换,诚心出售,可以再谈,欢迎看房,随时恭候。
-
小区配套问经纪人
小区地理位置佳,绿化环境优越整洁,居民素质高,物业管理完善,适宜居住
-
服务介绍问经纪人
1:买房找小夏,买得放心,住得舒心。 2:我公司主要代理城市:佛山广州广州周边城市项目。 3:本人钻心钻注房行业7年,对售前售后的交易流程都非常熟悉。 4:对于复杂性问题都可为您解决,如:贷款
-
税费分析房贷计算
关于本房的税费信息情况,请电话联系我,我将详细的为您讲解!
-
户型解读问经纪人
房屋拥有相对宽松的尺寸,布局通透,动静分离,设计豪华
周边配套
交通综合评分
查看全部超过广州41.8%的小区
-
地铁公交
5.0
-
城际交通
5.0
本月均价 8240元/m²
环比上月 上涨 0.23%
同比去年 下跌 31.24%
猜你喜欢
同小区其它房源
户型齐全,主打户型方正,明厨,双卧朝南,主卧朝南二居
南堤西路小区户型主要有75平-80平的户型方正,明厨,双卧朝南,主卧朝南的二居 、67平-119平的明厨,客厅朝南,主卧朝南的三居 。
*获取完整户型报告,同时会有免费语音讲解服务
-
17375元/㎡
本月挂牌均价
-
0.29%
环比上月
买房加房产交流群,省钱不踩雷
3000+人正在热聊
- 免费咨询
- 专业服务
- 区域解读
- 户型分析

