中区别墅,锦绣国际三中实验小学旁边,送地下室,四个主人套房
-
420万
总价
-
5室3厅5卫
户型
-
344.37㎡
建筑面积
买房加房产交流群,省钱不踩雷
3000+人正在热聊
加入群聊
-
单价
12196元/平米
- 挂牌价格解析
-
楼层
4层
- 咨询楼层
-
套内
暂无数据
- 咨询套内使用面积
-
楼型
联排
-
朝向
西
-
装修
精装修
-
年代
2002
-
发布
2025-12-18
-
咨询总首付
首付约110万
首付税费及佣金情况 -
深度测评
小区荔城碧桂园别墅(增城-荔城大道南)
-
更多
楼户比、楼层高度、交易历史、抵押信息
房源描述(1)
-
核心卖点问经纪人
五年,有花园,露台地下室
-
业主心态问经纪人
业主诚心出售,五年,产权清晰
-
小区配套问经纪人
1、地理位置优越。 2、附近有公交。出行上下班十分方便; 3、小区自带商业街,旁边也有广场,购物方便,节省您的宝贵时间。离各大商场且不远! 4、小区绿化率高。环境优美。宁静和谐,好环境总会给人带来好心情。 5、房干净整洁,温馨舒适,窗明几净. 6、户型方正,宽敞明亮,布局大方,采光非常好。
-
服务介绍问经纪人
本人专注房多年 ,熟悉所有二手房交易流程 让您省时,省心,省力,帮您用优惠的价格买到属于您舒适的房子, 服务到家,本人全程跟踪,过户全程代办 有任何关于房产交易的问题,都可以到店咨询。本人愿竭力为
-
税费分析房贷计算
该物业满五税费低
-
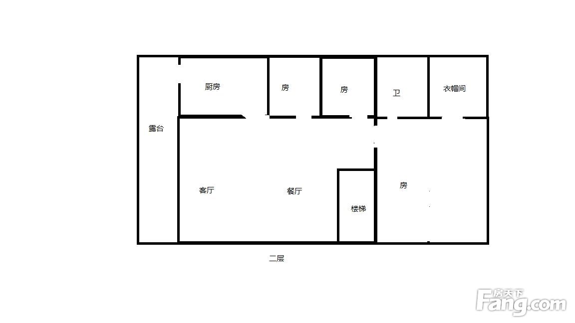
户型解读问经纪人
每个房间都平均20方左右,阳光十分好
周边配套
地址:荔城镇荔星大道
交通综合评分
查看全部6.6
“较好”
超过广州48.6%的小区
-
地铁公交
9.0
-
驾车出行
10.0
-
9191元/㎡
本月挂牌均价
-
0.75%
环比上月
买房加房产交流群,省钱不踩雷
3000+人正在热聊
加入群聊
- 免费咨询
- 专业服务
- 区域解读
- 户型分析
免责声明:房源信息由网站用户提供,其真实性、合法性由信息提供者负责,最终以政府部门登记备案为准。本网站不声明或保证内容之正确性和可靠性,购买该房屋时,请谨慎核查。入学情况仅凭历史经验总结,在此不承诺升学事宜。请您在签订合同之前,切勿支付任何形式的费用,以免上当受骗。


