锦绣御景国际 全新未住 轻奢装修4房 地铁口万达旁
-
153万
总价
-
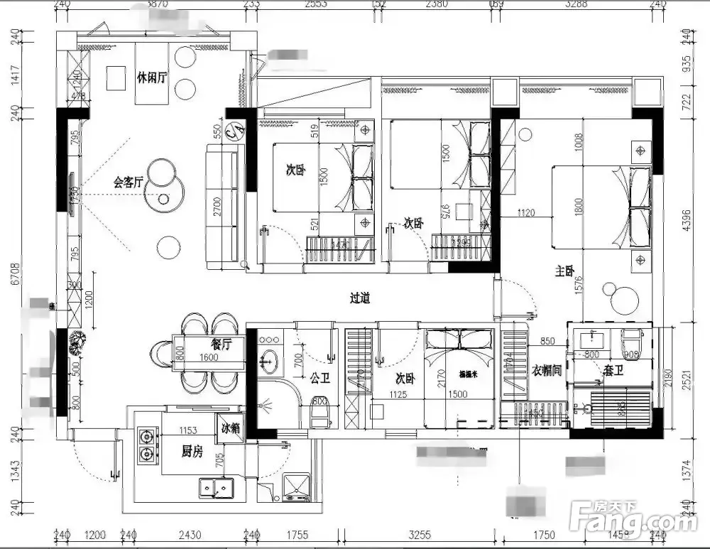
4室2厅2卫
户型
-
113.74㎡
建筑面积
买房加房产交流群,省钱不踩雷
3000+人正在热聊
-
单价
13452元/平米
- 挂牌价格解析
-
楼层
中层/18层
- 咨询楼层
-
套内
112.74㎡
- 咨询套内使用面积
-
楼型
板楼
-
朝向
西北
-
装修
简装修
-
年代
2012
-
发布
2025-03-13
-
地铁
暂无数据
-
咨询总首付
首付约32.5万
首付税费及佣金情况 -
深度测评
小区锦绣御景国际(增城-荔城大道南)
-
更多
楼户比、楼层高度、交易历史、抵押信息
房源描述(1)
-
核心卖点问经纪人
一、房源优势正规户型,日照充足,空气流畅 二、房屋介绍 格局合理,利用空间大,是 的好户型 三、社区配套 1、环境优雅,低密度社区 2、小区绿化高 四、周边配套 地理位置得天独厚,出行方便! 五、理由 让您体验惬意的生活,充分享受生活的美!
-
业主心态问经纪人
业主很信任我,我能了解业主卖房新的动态。目前市场交易量平稳,政策已经基本稳定,是市场触底入手的好时候。请不要错过性价比高的好房。
-
小区配套问经纪人
小区地理位置佳,绿化环境优越整洁,居民素质高,物业管理完善,适宜居住
-
服务介绍问经纪人
本人从事房产多年,我会根据您的需求为您量身找房! 实力三大服务: 1、 快速定位服务(指定买哪里,我来帮您找) 2、 快速量身找房(需求您来说,剩下交给我) 3、 快速房源估价(心里有房源,我给您建议
-
税费分析房贷计算
关于本房的税费信息情况,请电话联系我,我将详细的为您讲解!
-
户型解读问经纪人
房屋拥有相对宽松的尺寸,布局通透,动静分离,设计豪华
周边配套
交通综合评分
查看全部超过广州54.1%的小区
-
地铁公交
8.0
本月均价 12124元/m²
环比上月 下跌 2.23%
同比去年 下跌 12.46%
猜你喜欢
同小区其它房源
户型齐全,主打三居
锦绣御景国际户型主要有89平-164平的的三居 、129平-211平的露台,主卧带卫,干湿分离的四居 、60平-77平的南北通透,观景飘窗,干湿分离的二居 。
*获取完整户型报告,同时会有免费语音讲解服务
-
9191元/㎡
本月挂牌均价
-
0.75%
环比上月
买房加房产交流群,省钱不踩雷
3000+人正在热聊
- 免费咨询
- 专业服务
- 区域解读
- 户型分析


