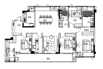
建总江南尚璟5室2厅南西北
-
390万
总价
-
5室2厅
户型
-
143.99㎡
建筑面积
买房加房产交流群,省钱不踩雷
3000+人正在热聊
加入群聊
-
单价
27086元/平米
- 挂牌价格解析
-
楼层
高楼层/10层
- 咨询楼层
-
套内
暂无数据
- 咨询套内使用面积
-
楼型
板楼
-
朝向
西南北
-
装修
毛坯
-
供暖
暂无数据
-
发布
2026-01-23
-
地铁
距1号线白湖亭站约308米
-
咨询总首付
首付约135.5万
首付税费及佣金情况 -
深度测评
小区建总江南尚璟(仓山-老仓山板块)
-
更多
楼户比、楼层高度、交易历史、抵押信息
周边配套
地址:仓山区南二环则徐大道白湖亭万达西侧
本月均价 26806元/m²
环比上月 下跌 1.39%
同比去年 上涨 6.95%
猜你喜欢
同小区其它房源
买房加房产交流群,省钱不踩雷
3000+人正在热聊
加入群聊
免责声明:房源信息由网站用户提供,其真实性、合法性由信息提供者负责,最终以政府部门登记备案为准。本网站不声明或保证内容之正确性和可靠性,购买该房屋时,请谨慎核查。入学情况仅凭历史经验总结,在此不承诺升学事宜。请您在签订合同之前,切勿支付任何形式的费用,以免上当受骗。



