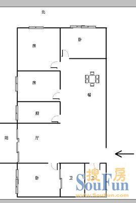
新都会财经广场 3室2厅 南 北
-
335万
总价
-
3室2厅1卫
户型
-
132.72㎡
建筑面积
买房加房产交流群,省钱不踩雷
3000+人正在热聊
加入群聊
-
单价
25242元/平米
- 挂牌价格解析
-
楼层
中楼层/22层
- 咨询楼层
-
套内
暂无数据
- 咨询套内使用面积
-
楼型
板楼
-
朝向
南北
-
装修
其他
-
供暖
暂无数据
-
发布
2025-12-12
-
地铁
距4号线省立医院站约403米
-
咨询总首付
首付约115.9万
首付税费及佣金情况 -
深度测评
小区新都会财经广场(鼓楼-东街口)
-
更多
楼户比、楼层高度、交易历史、抵押信息
周边配套
地址:东街43号
交通综合评分
查看全部8.3
“较好”
超过福州15.4%的小区
-
地铁公交
10.0
-
驾车出行
10.0
-
城际交通
4.5
本月均价 25989元/m²
环比上月 持平
同比去年 下跌 4.8%
猜你喜欢
同小区其它房源
-
35876元/㎡
本月挂牌均价
-
0.11%
环比上月
买房加房产交流群,省钱不踩雷
3000+人正在热聊
加入群聊
免责声明:房源信息由网站用户提供,其真实性、合法性由信息提供者负责,最终以政府部门登记备案为准。本网站不声明或保证内容之正确性和可靠性,购买该房屋时,请谨慎核查。入学情况仅凭历史经验总结,在此不承诺升学事宜。请您在签订合同之前,切勿支付任何形式的费用,以免上当受骗。



