龙庭居 155万 3室2厅2卫 精装修,好位置!好房子!
-
155万
总价
-
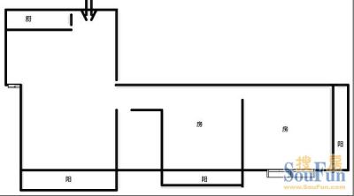
3室2厅2卫
户型
-
102㎡
建筑面积
买房加房产交流群,省钱不踩雷
3000+人正在热聊
-
单价
15196元/平米
- 挂牌价格解析
-
楼层
高层/17层
- 咨询楼层
-
套内
暂无数据
- 咨询套内使用面积
-
楼型
板楼
-
朝向
南北
-
装修
精装修
-
年代
2008
-
发布
2026-01-10
-
地铁
距2号线紫阳站约590米
-
咨询总首付
首付约47.5万
首付税费及佣金情况 -
深度测评
小区龙庭居(晋安-福马路)
-
更多
楼户比、楼层高度、交易历史、抵押信息
房源描述(1)
-
核心卖点问经纪人
1.此房是龙庭居的,3室2厅2卫朝向南北房子,采光和通风都非常好,房间使用率高,装修简约时尚. 2.小区内绿化率面积大,居民素质高,物业管理规范。生活非常方便,地处生活区中心,出门到公交站步行几即可。 3.保值潜力分析:价值取决于稀缺性,取决于不可替代性,物以稀为贵!龙庭居的一切设计都是围绕适合居住这个核心,家家有景的景观设计,与众不同的中央空调设计,且本小区内没有出租办公的,仅有出租居住的也不超过3%,九成以上的业主都是自己居住。它的这些不可替代的特点决定了它的品质,也注定了它的价值;随着华贸的东扩,的飞速发展,在未来的五到十年内,注定将被更多的有识之士所了解认可,现在能够有机会拥有这样的房子,确实是一件可遇而不可求的事情,得之,我幸!不要犹豫,马上走进揭开它的面纱,解答你的疑惑。 4.后请允许我衷心祝您早日买到称心如意的好房子,如果您对这套房子有兴趣可以联系我,或是想买一套其他户型的房子也都可以,我们掌握了及周边的出售的很多房源,相信定有适合你需求的那套。您好,我是高级职业顾问
-
业主心态问经纪人
房东置换,诚心出售,价格可以再谈,欢迎看房,随时恭候。
-
小区配套问经纪人
位置:小区地理位置佳,绿化率高,居民素质高 配套:有健身器材,小型篮球场,可供小区居民使用 车位:停车位充足,建有地上停车场和地下车库 保安:小区内24保安巡逻
-
服务介绍问经纪人
本人从事房地产多年,公司有大量好房源,欢迎进入我的店铺查看,欢迎随时电话咨询,相信我的专业,为您置业安家保驾护航。
-
税费分析房贷计算
新房: 房税费首套房契税1至3个点。 物业费2元到3元一平方。 购买新房主要税费: 契税:90平以内:1% ;90-124 平收1.5%;124平以上收2%(交房后地税收取) 注:以上收费仅供参考
周边配套
交通综合评分
查看全部超过福州50.3%的小区
-
地铁公交
10.0
-
驾车出行
10.0
-
城际交通
5.0
本月均价 21376元/m²
环比上月 上涨 1.37%
同比去年 下跌 9.97%
猜你喜欢
同小区其它房源
-
18714元/㎡
本月挂牌均价
-
0.24%
环比上月
买房加房产交流群,省钱不踩雷
3000+人正在热聊
- 免费咨询
- 专业服务
- 区域解读
- 户型分析


