惠景城三街惠小旁 3房1卫 维意定制新装修 现场拍照
-
68万
总价
-
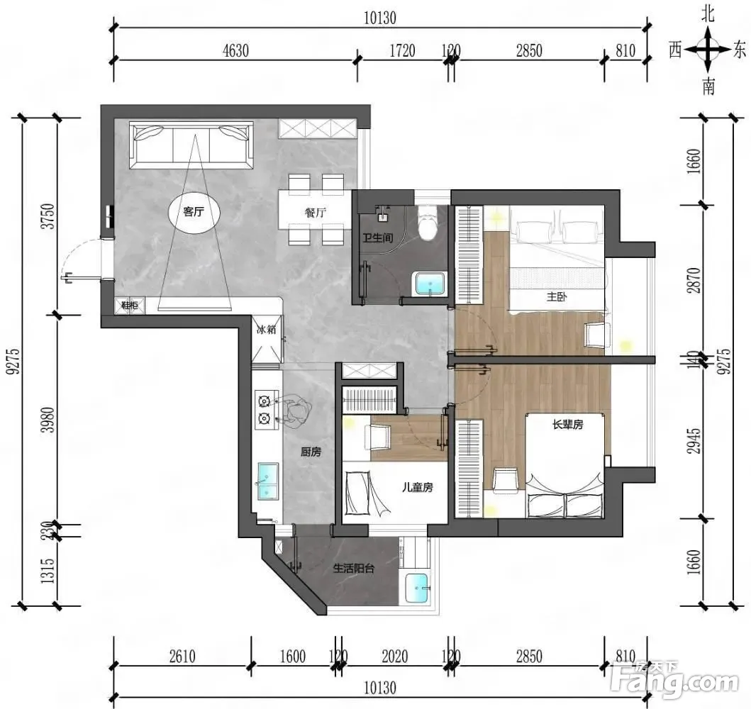
3室2厅1卫
户型
-
82.12㎡
建筑面积
买房加房产交流群,省钱不踩雷
3000+人正在热聊
加入群聊
-
单价
8281元/平米
- 挂牌价格解析
-
楼层
中层/28层
- 咨询楼层
-
套内
70.62㎡
- 咨询套内使用面积
-
楼型
砖楼
-
朝向
南
-
装修
精装修
-
年代
1998
-
发布
2025-06-12
-
地铁
距广佛线魁奇路站约896米
-
深度测评
小区惠景城(禅城-绿景)
-
更多
楼户比、楼层高度、交易历史、抵押信息
房源描述(1)
周边配套
地址:绿景一路惠景城
交通综合评分
查看全部4.0
“一般”
超过佛山64.9%的小区
-
地铁公交
10.0
本月均价 10754元/m²
环比上月 下跌 2.52%
同比去年 下跌 11.97%
猜你喜欢
同小区其它房源
-
9860元/㎡
本月挂牌均价
-
0.78%
环比上月
买房加房产交流群,省钱不踩雷
3000+人正在热聊
加入群聊
- 免费咨询
- 专业服务
- 区域解读
- 户型分析
免责声明:房源信息由网站用户提供,其真实性、合法性由信息提供者负责,最终以政府部门登记备案为准。本网站不声明或保证内容之正确性和可靠性,购买该房屋时,请谨慎核查。入学情况仅凭历史经验总结,在此不承诺升学事宜。请您在签订合同之前,切勿支付任何形式的费用,以免上当受骗。

