体育公园凯悦东南向两室两厅装修保持好采光视野佳
-
92万
总价
-
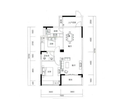
2室1厅
户型
-
107.61㎡
建筑面积
买房加房产交流群,省钱不踩雷
3000+人正在热聊
加入群聊
-
单价
8550元/平米
- 挂牌价格解析
-
楼层
低楼层/30层
- 咨询楼层
-
套内
暂无数据
- 咨询套内使用面积
-
楼型
板楼
-
朝向
东南
-
装修
其他
-
供暖
集中供暖
-
发布
2023-04-25
-
地铁
暂无数据
-
咨询总首付
首付约27.2万
首付税费及佣金情况 -
深度测评
小区凯伦凯越(开发区-万国)
-
更多
楼户比、楼层高度、交易历史、抵押信息
周边配套
地址:开发区滨海路71号(凯伦温泉旁)
交通综合评分
查看全部7.4
“较好”
超过大连58.0%的小区
-
地铁公交
8.0
-
驾车出行
10.0
-
城际交通
4.0
本月均价 6489元/m²
环比上月 下跌 0.14%
同比去年 下跌 10.33%
猜你喜欢
同小区其它房源
户型齐全,主打户型方正,主卧朝南一居
凯伦凯越户型主要有37平-90平的户型方正,主卧朝南的一居 、83平-108平的户型方正,明卫的二居 。
*获取完整户型报告,同时会有免费语音讲解服务
-
11709元/㎡
本月挂牌均价
-
1.68%
环比上月
买房加房产交流群,省钱不踩雷
3000+人正在热聊
加入群聊
免责声明:房源信息由网站用户提供,其真实性、合法性由信息提供者负责,最终以政府部门登记备案为准。本网站不声明或保证内容之正确性和可靠性,购买该房屋时,请谨慎核查。入学情况仅凭历史经验总结,在此不承诺升学事宜。请您在签订合同之前,切勿支付任何形式的费用,以免上当受骗。



