虎滩近地铁 安静环境好 南北通透 近市场车站
-
38万
总价
-
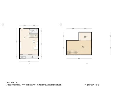
1室1厅
户型
-
45.41㎡
建筑面积
买房加房产交流群,省钱不踩雷
3000+人正在热聊
加入群聊
-
单价
8369元/平米
- 挂牌价格解析
-
楼层
高楼层/7层
- 咨询楼层
-
套内
暂无数据
- 咨询套内使用面积
-
楼型
板楼
-
朝向
南北
-
装修
其他
-
供暖
集中供暖
-
发布
2024-03-21
-
地铁
距5号线虎滩新区站约795米
-
咨询总首付
首付约13.3万
首付税费及佣金情况 -
深度测评
小区碧波园(中山-老虎滩)
-
更多
楼户比、楼层高度、交易历史、抵押信息
周边配套
地址:中山虎滩路西侧
交通综合评分
查看全部2.0
“一般”
超过大连95.7%的小区
-
地铁公交
5.0
本月均价 9272元/m²
环比上月 下跌 0.11%
同比去年 下跌 4.93%
猜你喜欢
同小区其它房源
户型齐全,主打户型方正,明厨二居
碧波园户型主要有45平-116平的户型方正,明厨的二居 、43平-64平的户型方正,明厨,客厅朝南的一居 、68平-149平的户型方正,明厨,客厅朝南的三居 。
*获取完整户型报告,同时会有免费语音讲解服务
-
18409元/㎡
本月挂牌均价
-
1.52%
环比上月
买房加房产交流群,省钱不踩雷
3000+人正在热聊
加入群聊
免责声明:房源信息由网站用户提供,其真实性、合法性由信息提供者负责,最终以政府部门登记备案为准。本网站不声明或保证内容之正确性和可靠性,购买该房屋时,请谨慎核查。入学情况仅凭历史经验总结,在此不承诺升学事宜。请您在签订合同之前,切勿支付任何形式的费用,以免上当受骗。



