近理工附 翰林观海位置好拎包住 三室 电梯房 海景房
-
259万
总价
-
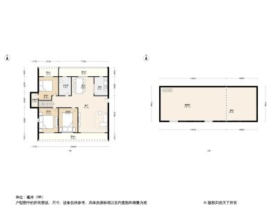
3室2厅
户型
-
136.11㎡
建筑面积
买房加房产交流群,省钱不踩雷
3000+人正在热聊
加入群聊
-
单价
19029元/平米
- 挂牌价格解析
-
楼层
高楼层/12层
- 咨询楼层
-
套内
暂无数据
- 咨询套内使用面积
-
楼型
板楼
-
朝向
南北
-
装修
精装
-
供暖
集中供暖
-
发布
2022-06-21
-
地铁
距1号线海事大学站约818米
-
咨询总首付
首付约76.5万
首付税费及佣金情况 -
深度测评
小区翰林观海(高新园区-软件园)
-
更多
楼户比、楼层高度、交易历史、抵押信息
周边配套
地址:高新园区翰林园1-32号
交通综合评分
查看全部4.0
“一般”
超过大连77.7%的小区
-
地铁公交
10.0
本月均价 18560元/m²
环比上月 下跌 0.4%
同比去年 下跌 11.02%
猜你喜欢
同小区其它房源
户型齐全,主打户型方正,明卫,明厨,客厅朝南,全明格局,双卧朝南,主卧朝南三居
翰林观海户型主要有70平-162平的户型方正,明卫,明厨,客厅朝南,全明格局,双卧朝南,主卧朝南的三居 、30平-102平的客厅朝南,主卧朝南的一居 、50平-123平的户型方正,明卫,主卧朝南的二居 。
*获取完整户型报告,同时会有免费语音讲解服务
-
17423元/㎡
本月挂牌均价
-
1.14%
环比上月
买房加房产交流群,省钱不踩雷
3000+人正在热聊
加入群聊
免责声明:房源信息由网站用户提供,其真实性、合法性由信息提供者负责,最终以政府部门登记备案为准。本网站不声明或保证内容之正确性和可靠性,购买该房屋时,请谨慎核查。入学情况仅凭历史经验总结,在此不承诺升学事宜。请您在签订合同之前,切勿支付任何形式的费用,以免上当受骗。



