580万四室一楼下跃实际面积400平秀月麒林买房收取服费三千
-
580万
总价
-
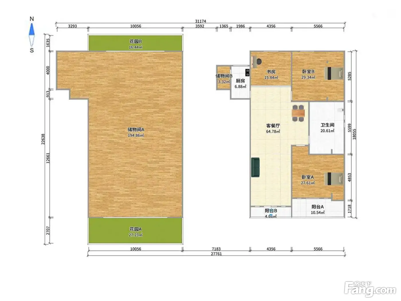
4室2厅2卫
户型
-
151.45㎡
建筑面积
买房加房产交流群,省钱不踩雷
3000+人正在热聊
-
单价
38296元/平米
- 挂牌价格解析
-
楼层
底层/9层
- 咨询楼层
-
套内
暂无数据
- 咨询套内使用面积
-
楼型
板楼
-
朝向
南北
-
装修
简装修
-
年代
2018
-
发布
2026-01-10
-
地铁
距5号线秀月街站约363米
-
咨询总首付
首付约200.9万
首付税费及佣金情况 -
深度测评
小区秀月麒林(中山-秀月街)
-
更多
楼户比、楼层高度、交易历史、抵押信息
房源描述(1)
-
核心卖点问经纪人
房子位于秀月街 秀月麒林 急售 价可谈 四室 诚心卖,地产 现金买3000元 贷款买4000 组合买5000 买卖透明交易,资金冻结,全程监督,小伙很实在,买房卖房找李宾,安全,快捷,专业。
周边配套
交通综合评分
查看全部超过大连16.9%的小区
-
地铁公交
5.0
本月均价 32730元/m²
环比上月 下跌 2.58%
同比去年 上涨 4.99%
猜你喜欢
同小区其它房源
户型齐全,主打明厨,客厅朝南,双卧朝南二居
秀月麒林户型主要有60平-95平的明厨,客厅朝南,双卧朝南的二居 、128平-165平的户型方正,明卫,客厅朝南,主卧朝南的三居 、150平-150平的全明格局,主卧朝南的四居 。
*获取完整户型报告,同时会有免费语音讲解服务
-
22176元/㎡
本月挂牌均价
-
0.55%
环比上月
买房加房产交流群,省钱不踩雷
3000+人正在热聊
- 免费咨询
- 专业服务
- 区域解读
- 户型分析

