维多利亚庄园独栋别墅 地上三层地下一层 带电梯 拎包即住
-
2050万
总价
-
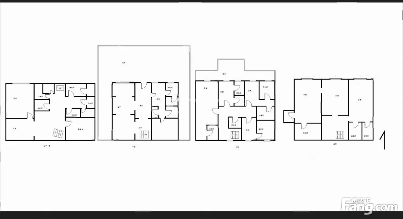
7室4厅6卫
户型
-
460㎡
建筑面积
买房加房产交流群,省钱不踩雷
3000+人正在热聊
加入群聊
-
单价
44565元/平米
- 挂牌价格解析
-
楼层
4层
- 咨询楼层
-
套内
暂无数据
- 咨询套内使用面积
-
楼型
独栋
-
朝向
东
-
装修
豪华装修
-
年代
2010
-
发布
2025-09-23
-
咨询总首付
首付约708万
首付税费及佣金情况 -
深度测评
小区维多利亚庄园别墅(中山-秀月街)
-
更多
楼户比、楼层高度、交易历史、抵押信息
房源描述(1)
-
核心卖点问经纪人
南北通透户型,自然清风入户 独立玄关设计,尽享私属空间 南向主卧室,畅享明亮与温暖 次卧榻榻米 增加更多储物功能 餐客厅一体化,生活自由切换 南向阳光客厅,悦享暖阳美景 通风式厨房,美味与幸福相伴 私密卫生间,独享舒适生活体验……
-
业主心态问经纪人
正常出售 价格没有变化 二手房手续 看房可以提前联系
-
小区配套问经纪人
位置:小区地理位置佳,绿化率高,居民素质高 配套:有健身器材,小型篮球场,可供小区居民使用 车位:停车位充足,建有地上停车场和地下车库 保安:小区内24保安巡逻
-
服务介绍问经纪人
本人从事房地产多年,公司有大量好房源,欢迎进入我的店铺查看,欢迎随时电话咨询,相信我的专业,为您置业安家保驾护航。
周边配套
地址:大连市中山区八一路250号
交通综合评分
查看全部2.0
“一般”
超过大连27.7%的小区
-
地铁公交
5.0
-
22176元/㎡
本月挂牌均价
-
0.55%
环比上月
买房加房产交流群,省钱不踩雷
3000+人正在热聊
加入群聊
免责声明:房源信息由网站用户提供,其真实性、合法性由信息提供者负责,最终以政府部门登记备案为准。本网站不声明或保证内容之正确性和可靠性,购买该房屋时,请谨慎核查。入学情况仅凭历史经验总结,在此不承诺升学事宜。请您在签订合同之前,切勿支付任何形式的费用,以免上当受骗。



