清水塘本布 双地铁口公路局 交通厅4房 电梯房
-
210万
总价
-
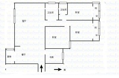
4室1厅
户型
-
141.18㎡
建筑面积
买房加房产交流群,省钱不踩雷
3000+人正在热聊
加入群聊
-
单价
14875元/平米
- 挂牌价格解析
-
楼层
低楼层/31层
- 咨询楼层
-
套内
暂无数据
- 咨询套内使用面积
-
朝向
南
-
装修
其他
-
供暖
暂无数据
-
发布
2025-07-19
-
地铁
距2号线迎宾路口站约479米
-
咨询总首付
首付约34.1万
首付税费及佣金情况 -
深度测评
小区老交通厅宿舍(开福-松桂园)
-
更多
楼户比、楼层高度、交易历史、抵押信息
周边配套
地址:迎宾路与八一路交汇处 军区医院对面 清水塘附近
交通综合评分
查看全部5.3
“一般”
超过长沙58.0%的小区
-
地铁公交
10.0
-
城际交通
4.5
本月均价 13583元/m²
环比上月 上涨 5.4%
同比去年 上涨 13.16%
猜你喜欢
同小区其它房源
-
9581元/㎡
本月挂牌均价
-
0.3%
环比上月
买房加房产交流群,省钱不踩雷
3000+人正在热聊
加入群聊
免责声明:房源信息由网站用户提供,其真实性、合法性由信息提供者负责,最终以政府部门登记备案为准。本网站不声明或保证内容之正确性和可靠性,购买该房屋时,请谨慎核查。入学情况仅凭历史经验总结,在此不承诺升学事宜。请您在签订合同之前,切勿支付任何形式的费用,以免上当受骗。



