南城省府片区 央企品质 低密奢居 精装大盘 两梯两户高得房
-
125万
总价
-
3室2厅2卫
户型
-
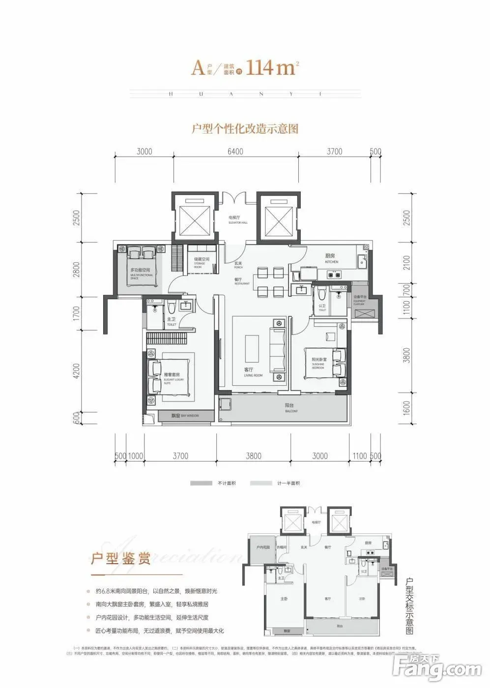
114㎡
建筑面积
买房加房产交流群,省钱不踩雷
3000+人正在热聊
-
单价
10965元/平米
- 挂牌价格解析
-
楼层
低层/16层
- 咨询楼层
-
套内
暂无数据
- 咨询套内使用面积
-
楼型
板楼
-
朝向
南北
-
装修
精装修
-
年代
2022
-
发布
2025-10-19
-
地铁
距1号线尚双塘站约926米
-
咨询总首付
首付约23.4万
首付税费及佣金情况 -
深度测评
小区中海寰宇天下(天心-芙蓉南路)
-
更多
楼户比、楼层高度、交易历史、抵押信息
房源描述(1)
-
核心卖点问经纪人
省府南 精装高档品质盘! 1号线、5号线、7号线,近70万方全能配套大城,坐拥1湘雅、2公园、3学府、4轨道 繁华配套,淬炼建面约114-189㎡央企低密奢居,前瞻未来奢居标准! 三地贴一轨:1号线400米、5号线正地贴口、7号线一公里、长株潭城际铁路先锋站等多元交通; 省府高端档次小高层低密大盘; 15年一站式教育,自建、九年一贯制中师大双语; 精装面积 :114㎡、130㎡、143㎡、189㎡ ; 休闲生态区:外拥港子河城市公园、仙姑岭生态公园; 【交房时间】预计2024年12月底 【物业费】2.88元/㎡ 【面积】114-189㎡精装学府 【价格】14000-16000元/㎡ 【容积率】2.09% 【得房率】92% 【绿化率】35% 【物业公司】中海物业 【梯户比】两梯两户or两梯三户 【占地面积】400亩 【建筑面积】70万㎡ 【车位比】接近1:1
-
业主心态问经纪人
国家一级资质,13个香港政府机构“御用管家”,420多项至高荣誉,约2.6亿㎡服务面积,超1/5世界500强公司指定物业服务商;荣膺“中国管家”美誉。 连续十四年中国物业服务百强企业TOP十; 获中国物业管理企业十大品牌NO.一; 获中国物业服务企业品牌价值百强NO.一; 获2021物业服务企业上市公司TOP十;
-
小区配套问经纪人
医疗:中南大学湘雅医院新院区(已封顶),距离项目约400米,战略定位为国家医学中心,拟建成国内一流、国际知名的综合性三甲医院,赋能家人健康 交通:3地贴口,1号线中信广场站(直线距离约600米);尚双塘站(直线距离约700米);5号线南延线果子园站,4轴主脉:芙蓉南路、环保大道、汇金路、万家丽南路,四通八达,1城
-
服务介绍问经纪人
您好!我姓张,从事房地产行业有13余年,全面熟练的了解新房二手房的信息,我会用专业和诚恳的态度能为您安家置业提供服务,想了解房源详情或有疑问可拨打电话(WX同号) 我会 一 一为您解答! 注:新房免佣
周边配套
本月均价 12223元/m²
环比上月 上涨 0.27%
同比去年 下跌 12.96%
猜你喜欢
同小区其它房源
户型齐全,主打户型方正,客厅朝南四居
中海寰宇天下户型主要有129平-189平的户型方正,客厅朝南的四居 、113平-114平的户型方正,客厅朝南的三居 。
*获取完整户型报告,同时会有免费语音讲解服务
-
8975元/㎡
本月挂牌均价
-
0.78%
环比上月
买房加房产交流群,省钱不踩雷
3000+人正在热聊
- 免费咨询
- 专业服务
- 区域解读
- 户型分析

